省心挑好房,先上幸福里
立即打开
1/8

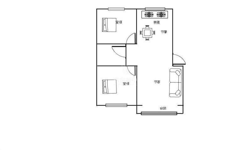
2室2厅 蜊叉泊

南北通透
有电梯
临近学校
80万
售价
2室2厅
房型
85平
建筑面积
中驰房产官方提供

周边配套

详情
位置
前湾港路236号
交通
教育
医疗
生活
休闲
港头(6号线)
1.2km
黄河路(在建6号线)
1.9km
青医西院区(在建6号线)
2.0km

小区行情周报

详情
持平
咨询小区历史成交价
去咨询
免责声明:房源所示图片及其他信息仅供参考,购房时请以房本信息为准。图片、VR等房屋信息由房源发布机构发布,如有侵权等情况,请在房源展示图片右下侧点击“反馈”联系幸福里平台处理。幸福里平台禁止经纪人/咨询师“返佣返现”,请您警惕。反馈