省心挑好房,先上幸福里
立即打开
1/25
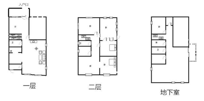
4室2厅 温哥华森林
反馈
绿化率高
1700万
售价
4室2厅
房型
378.79平
建筑面积
单价
44879元/平
挂牌
2023-07-19
楼层
低楼层/共3层
朝向
南
装修
精装修
电梯
无电梯
权属
商品房
小区
温哥华森林(昌平-北七家)
点评
所在小区1位业主分享真实入住感受
提示
签订正式租房/购房合同前切勿支付任何费用
万众恒基升泰官方提供
关注房源动态,掌握一手信息
关注动态
周边配套
详情
位置
东北路与立汤路交口东北侧
交通
教育
医疗
生活
休闲
东沙各庄公交场站((东北路店))
552m
平坊站(430路;533路;537路;643路;643路区间;871路;905路;922路;984路;C110路;C114路;C115路;专35路;快速直达专线114路;快速直达专线11路;快速直达专线157)
1.7km
冠雅苑(快速直达专线164路)
2.0km
温哥华森林
详情
小区行情周报
详情
持平
咨询小区历史成交价
去咨询
免责声明:房源所示图片及其他信息仅供参考,购房时请以房本信息为准。图片、VR等房屋信息由房源发布机构发布,如有侵权等情况,请在房源展示图片右下侧点击“反馈”联系幸福里平台处理。幸福里平台禁止经纪人/咨询师“返佣返现”,请您警惕。
反馈