省心挑好房,先上幸福里
立即打开
1/13
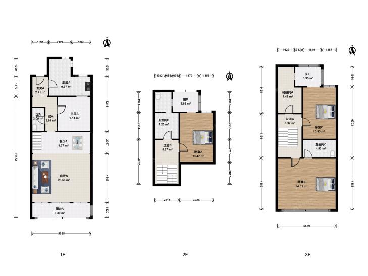
4室2厅 京城雅居
反馈
南北通透
临近地铁
680万
售价
4室2厅
房型
159.53平
建筑面积
单价
42625元/平
挂牌
2024-03-24
楼层
中楼层/共5层
朝向
南北
装修
精装修
电梯
无电梯
楼型
板楼
类型
住宅
权属
商品房
小区
京城雅居(朝阳-豆各庄)
点评
所在小区2位业主分享真实入住感受
提示
签订正式租房/购房合同前切勿支付任何费用
我爱我家官方提供
关注房源动态,掌握一手信息
关注动态
周边配套
详情
位置
豆各庄6号院
交通
教育
医疗
生活
休闲
郎辛庄(万通路朝丰家园-北区东北侧约250米)
1.3km
黄厂(7号线)
1.9km
焦化厂(燕保祈东家园东北侧约280米)
2.2km
京城雅居
详情
小区行情周报
详情
持平
咨询小区历史成交价
去咨询
小区实勘测评
详情
7.4
综合评分“良好”
区域价值
6.7
产品价值
7.8
配套价值
6.7
交易价值
8.5
1、小区占地面积较大,楼间距宽阔,容积率较低;而且较大的绿化用地,也让整个小区的空气变得清新,环境变得安静。 2、小区完善的内部配套,包括健身房、游泳馆、篮球场都可以满足居民的日常休闲生活需求,带来更好的居住体验,同时小区门口的超市也可以满足居民最基本的生活购物需求。 3、作为别墅社区,拥有同级别社区所不具备的较低均价,购房者能够以较低的购房价格体验到别墅生活的舒适度。 4、小区地理位置较好,紧邻京哈高速,周边线路四通八达,直通各个环线。而且周围道路不太拥堵,居民自驾出行十分便利。
免责声明:房源所示图片及其他信息仅供参考,购房时请以房本信息为准。图片、VR等房屋信息由房源发布机构发布,如有侵权等情况,请在房源展示图片右下侧点击“反馈”联系幸福里平台处理。幸福里平台禁止经纪人/咨询师“返佣返现”,请您警惕。
反馈