省心挑好房,先上幸福里
立即打开
1/20

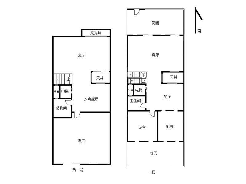
7室3厅 中海大山地(北区)

唯一住房
满五年
临近地铁
临近学校
1650万
售价
7室3厅
房型
290.73平
建筑面积
Q房网官方提供

周边配套

详情
位置
横岗-梧桐路8号
交通
教育
医疗
生活
休闲
六约北(14号线/东部快线)
398m
六约(3号线/龙岗线)
1.3km
塘坑(3号线/龙岗线)
1.8km
免责声明:房源所示图片及其他信息仅供参考,购房时请以房本信息为准。图片、VR等房屋信息由房源发布机构发布,如有侵权等情况,请在房源展示图片右下侧点击“反馈”联系幸福里平台处理。幸福里平台禁止经纪人/咨询师“返佣返现”,请您警惕。反馈