选好房,就上幸福里找房
立即打开
1/10
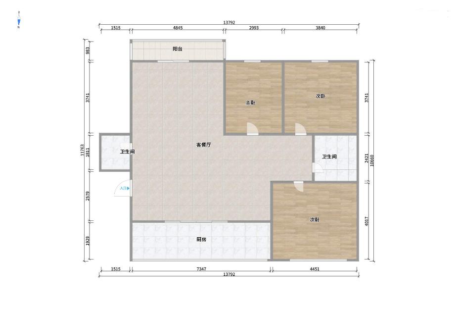
3室2厅 惠安小区
反馈
南北通透
98万
售价
3室2厅
房型
128.8平
建筑面积
单价
7608元/平
挂牌
2024-11-10
楼层
低楼层/共7层
朝向
南北
装修
简装修
电梯
无电梯
类型
住宅
小区
惠安小区(城西-力盟)
提示
签订正式租房/购房合同前切勿支付任何费用
宏辉房产官方提供
关注房源动态,掌握一手信息
关注动态
周边配套
详情
位置
西关大街19号
交通
教育
医疗
生活
休闲
五岔路口站(104路;16路;25路;303路;35路;37路;37路区间车;69路;72路;80路;82路;85路;9001路/9路高峰区间车;夜班503路;游1路;游2路)
484m
昆仑桥(停运49路;停运夜班505路;105路;19路;21路;23路;27路;301路;301路6点10分-8点30分;301路6点20-7点;302路;32路;34路;37路;37路区间;3路区间车;4路;58路;71路;82路;84路;K1路;免费换乘专线)
834m
市中医院兴海分院(24路)
970m
惠安小区
详情
小区行情周报
详情
持平
咨询小区历史成交价
去咨询
免责声明:房源所示图片及其他信息仅供参考,购房时请以房本信息为准。图片、VR等房屋信息由房源发布机构发布,如有侵权等情况,请在房源展示图片右下侧点击“反馈”联系幸福里找房平台处理。幸福里找房平台禁止经纪人/咨询师“返佣返现”,请您警惕。
反馈