选好房,就上幸福里找房
立即打开
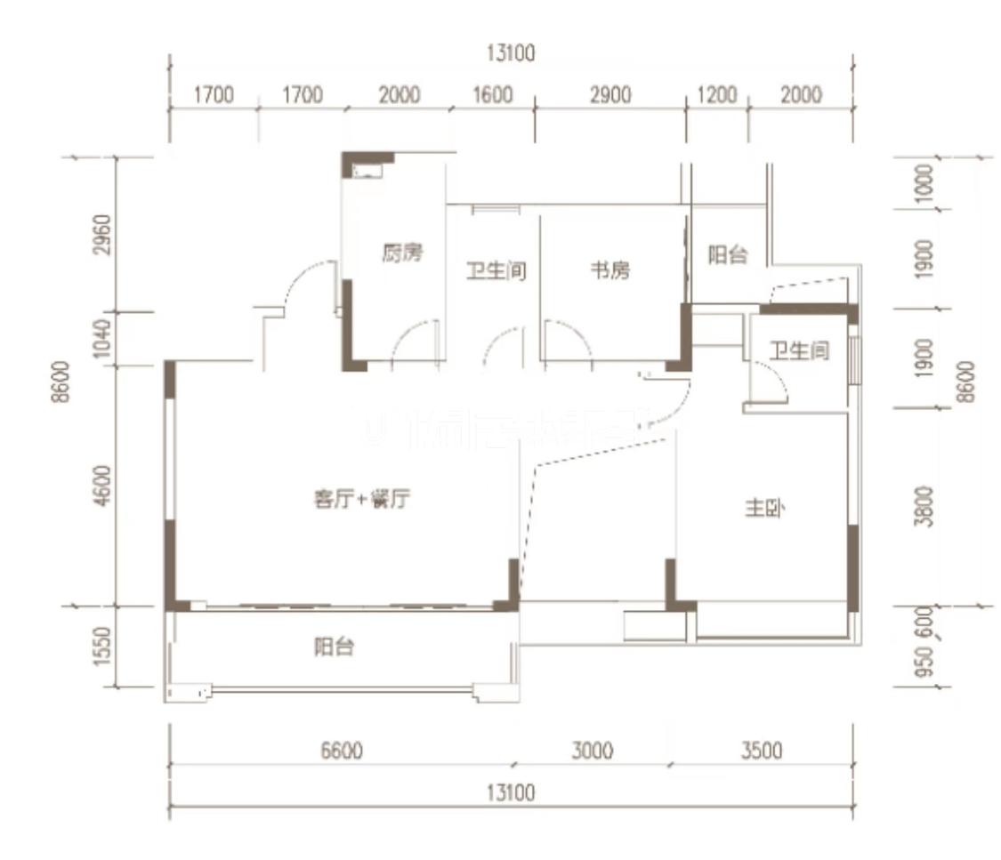
1/14

周边配套

详情
位置
临江路258号漓江郡府金桂府
交通
教育
医疗
生活
休闲
叠彩山(203路;2路;观光公交1号线)
670m
东镇路(100路;18路;1路;203路;89路)
845m
凤北路口(100路;18路;1路;2路;301路;301路夜间区间;89路;K99路;观光公交1号线)
969m

小区行情周报

详情
持平
咨询小区历史成交价
去咨询
免责声明:房源所示图片及其他信息仅供参考,购房时请以房本信息为准。图片、VR等房屋信息由房源发布机构发布,如有侵权等情况,请在房源展示图片右下侧点击“反馈”联系幸福里找房平台处理。幸福里找房平台禁止经纪人/咨询师“返佣返现”,请您警惕。反馈