选好房,就上幸福里找房
立即打开
1/31
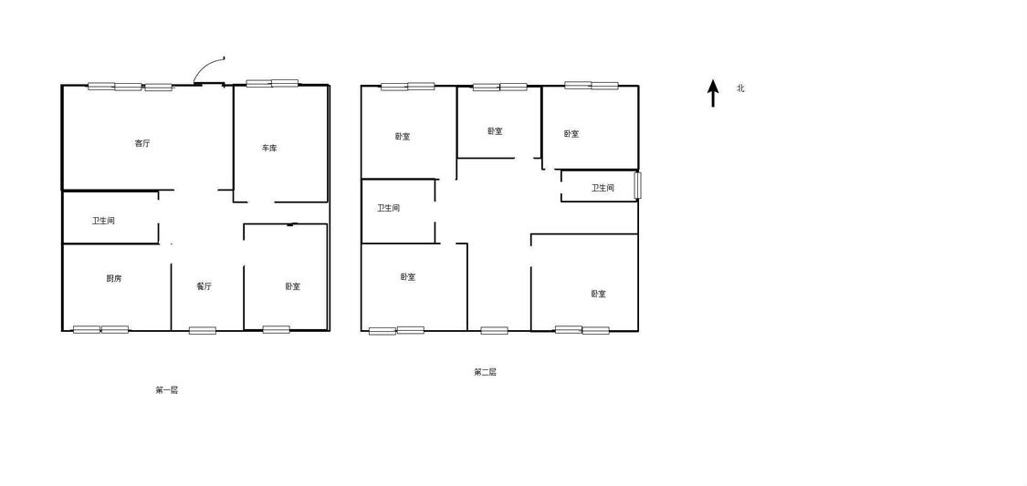
4室2厅 白河花园
反馈
南北通透
满两年
185万
售价
4室2厅
房型
405平
建筑面积
单价
4567元/平
挂牌
2024-08-06
楼层
低楼层/共3层
朝向
南北
装修
简装修
电梯
无电梯
类型
住宅
权属
商品房
小区
白河花园(宛城-南阳理工)
提示
签订正式租房/购房合同前切勿支付任何费用
大象找房官方提供
关注房源动态,掌握一手信息
关注动态
周边配套
详情
位置
白河中路
交通
教育
医疗
生活
休闲
白河路泰山路口东(7路/K7路;K11路)
231m
长江路独山大道西(24路/K24路;27路/K27路;28路/K28路A线;28路B线;28路B线/K28路;37路/K37路;40路/K40路;45路;4路/K4路;S207路;XY2路;XY3路;微5路)
459m
滨河大道独山大道西(21路/K21路;23路/K23路)
874m
白河花园
详情
小区行情周报
详情
持平
咨询小区历史成交价
去咨询
免责声明:房源所示图片及其他信息仅供参考,购房时请以房本信息为准。图片、VR等房屋信息由房源发布机构发布,如有侵权等情况,请在房源展示图片右下侧点击“反馈”联系幸福里找房平台处理。幸福里找房平台禁止经纪人/咨询师“返佣返现”,请您警惕。
反馈