省心挑好房,先上幸福里
立即打开
VR
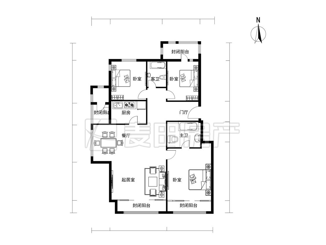
图片
1/28

周边配套

详情
位置
太平街8号院
交通
教育
医疗
生活
休闲
陶然桥(14号线)
947m
天桥(8号线)
972m
陶然亭(4号线/大兴线)
1.3km

小区行情周报

详情
持平
咨询小区历史成交价
去咨询
免责声明:房源所示图片及其他信息仅供参考,购房时请以房本信息为准。图片、VR等房屋信息由房源发布机构发布,如有侵权等情况,请在房源展示图片右下侧点击“反馈”联系幸福里平台处理。幸福里平台禁止经纪人/咨询师“返佣返现”,请您警惕。反馈