选好房,就上幸福里找房
立即打开
1/16
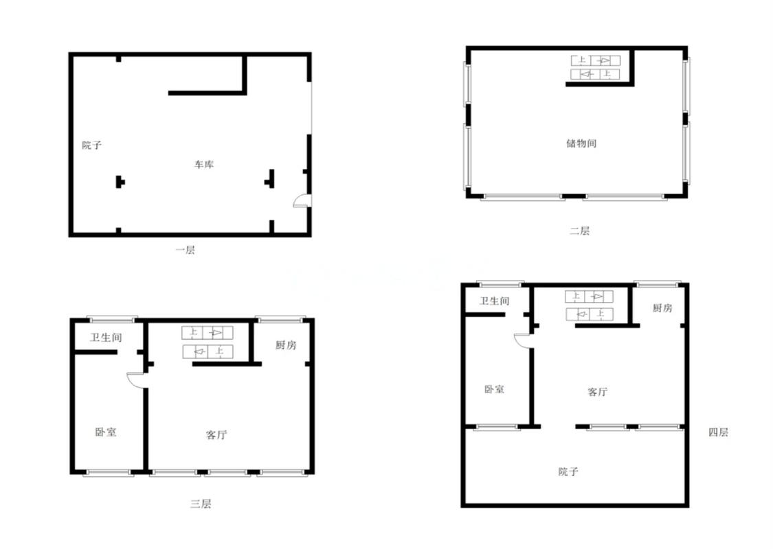
7室3厅 桃花源里
反馈
降
40.0万
满两年
别墅
358万
售价
7室3厅
房型
251.47平
建筑面积
单价
14236元/平
挂牌
2024-06-16
楼层
低楼层/共4层
朝向
南
装修
其他
电梯
无电梯
楼型
板楼
类型
别墅
权属
商品房
小区
桃花源里(铜山-铜山周边)
提示
签订正式租房/购房合同前切勿支付任何费用
爱易居房产官方提供
关注房源动态,掌握一手信息
关注动态
周边配套
详情
位置
汉王镇虎腰村
交通
教育
医疗
生活
休闲
紫山村(68路;710路)
2.2km
丁塘老街(68路)
2.4km
拔剑泉(68路)
2.5km
桃花源里
详情
小区行情周报
详情
持平
咨询小区历史成交价
去咨询
免责声明:房源所示图片及其他信息仅供参考,购房时请以房本信息为准。图片、VR等房屋信息由房源发布机构发布,如有侵权等情况,请在房源展示图片右下侧点击“反馈”联系幸福里找房平台处理。幸福里找房平台禁止经纪人/咨询师“返佣返现”,请您警惕。
反馈