选好房,就上幸福里找房
立即打开
VR
图片
1/20
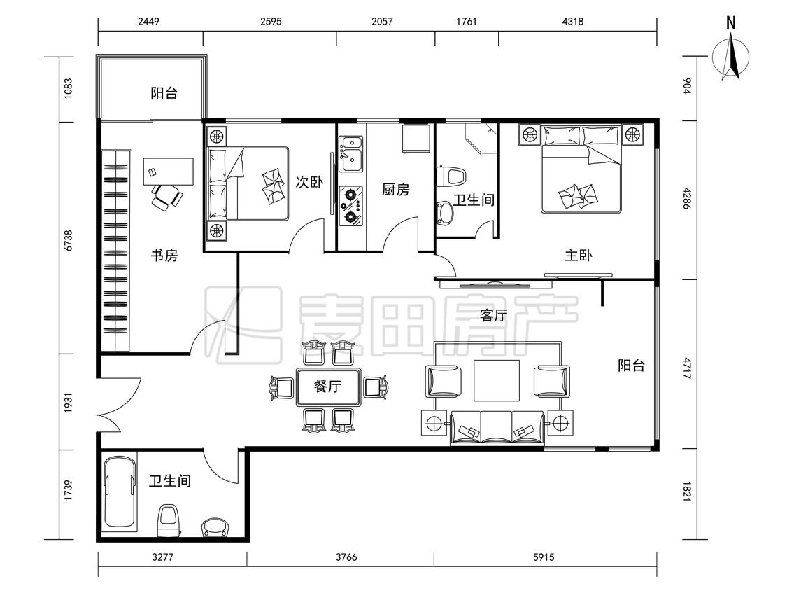
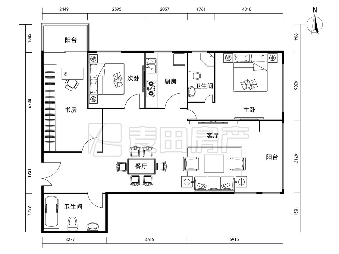
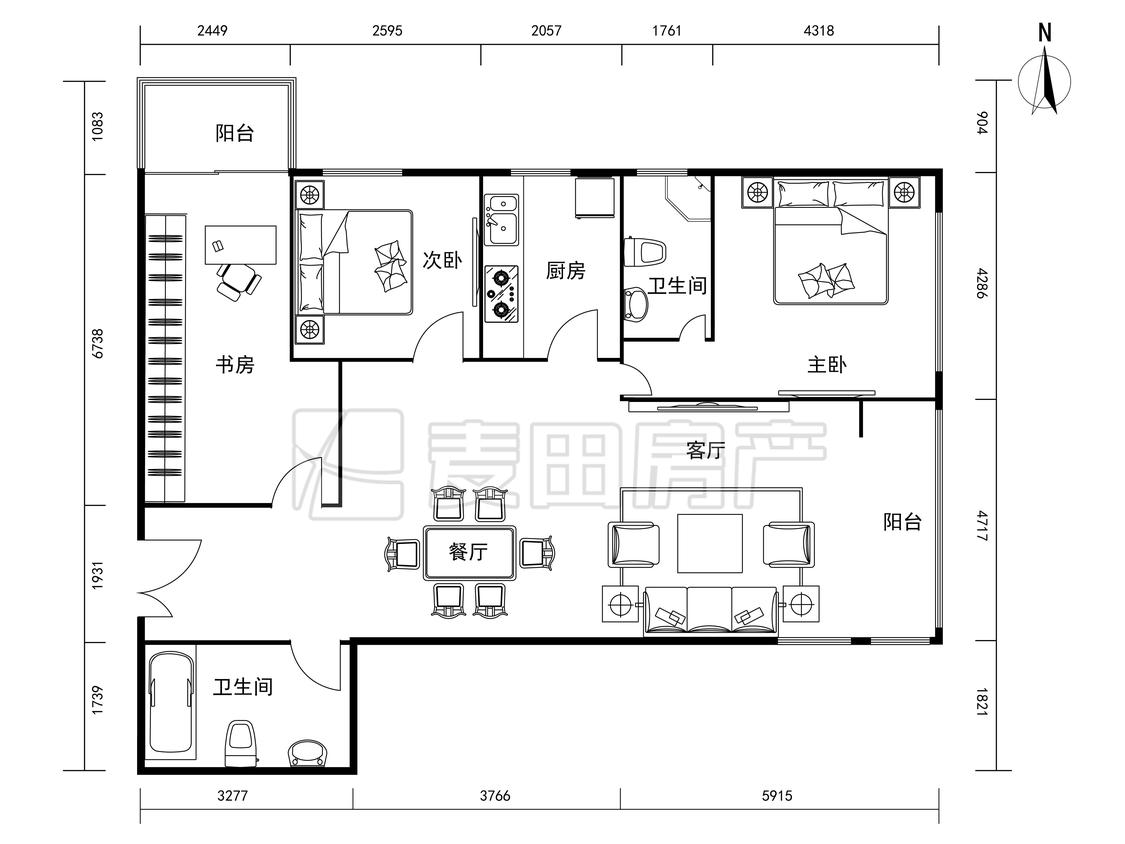
3室1厅 欧陆经典
反馈
唯一住房
有电梯
满五年
临近地铁
1050万
售价
3室1厅
房型
151.69平
建筑面积
单价
69220元/平
挂牌
2024-04-13
楼层
中楼层/共26层
朝向
东南北
装修
简装修
电梯
有电梯
楼型
塔楼
类型
住宅
权属
商品房
年代
2002年
小区
欧陆经典(朝阳-亚运村小营)
点评
所在小区2位业主分享真实入住感受
提示
签订正式租房/购房合同前切勿支付任何费用
麦田房产店官方提供
关注房源动态,掌握一手信息
关注动态
周边配套
详情
位置
亚运村小营-四至五环北苑路172号万兴苑,北苑路172号万兴苑南园
交通
教育
医疗
生活
休闲
大屯路东(5号线)
887m
惠新西街北口(5号线)
934m
关庄(15号线)
1.1km
欧陆经典
详情
小区行情周报
详情
持平
咨询小区历史成交价
去咨询
小区实勘测评
详情
8.2
综合评分“良好”
区域价值
7.5
产品价值
8.6
配套价值
8.3
交易价值
8.5
1.周边配套相对完善,学校、医院、休闲场所遍布,居民基本需求和高品质生活追求都能得到满足。交通便利,公交站地铁站步行可达,出行通勤便利。 2.品质感受好,道路规划好,内部车辆有序停放,车辆行人进出互不干扰。整体观感不错。小区物业日常清洁工作到位。 3.小区绿化高,环境优美,空气清新。微观来看,小区设施齐全。宏观来看,多个大型森林公园环绕,生态环境优良。是居民休闲娱乐的好去处。 4.小区有78.89㎡-213.00㎡一居到四居,空间大,是刚改及品改购房者的福音。
免责声明:房源所示图片及其他信息仅供参考,购房时请以房本信息为准。图片、VR等房屋信息由房源发布机构发布,如有侵权等情况,请在房源展示图片右下侧点击“反馈”联系幸福里找房平台处理。幸福里找房平台禁止经纪人/咨询师“返佣返现”,请您警惕。
反馈