省心挑好房,先上幸福里
立即打开
1/8
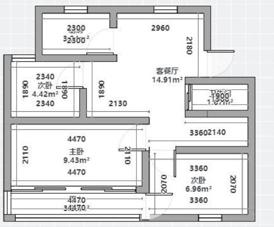
3室2厅 幸福家园(瓯海)
反馈
临近地铁
临近学校
87.03万
售价
3室2厅
房型
96.7平
建筑面积
单价
9000元/平
挂牌
2024-04-11
楼层
高楼层/共6层
朝向
南
装修
简装修
电梯
无电梯
类型
住宅
小区
幸福家园(瓯海)(瓯海-梧田)
提示
签订正式租房/购房合同前切勿支付任何费用
温州万豪官方提供
关注房源动态,掌握一手信息
关注动态
周边配套
详情
位置
双庆路51号
交通
教育
医疗
生活
休闲
梧田广场(在建S3号线)
813m
龙霞路(S1线)
1.0km
温州火车站(在建S3号线)
1.5km
幸福家园(瓯海)
详情
免责声明:房源所示图片及其他信息仅供参考,购房时请以房本信息为准。图片、VR等房屋信息由房源发布机构发布,如有侵权等情况,请在房源展示图片右下侧点击“反馈”联系幸福里平台处理。幸福里平台禁止经纪人/咨询师“返佣返现”,请您警惕。
反馈