选好房,就上幸福里找房
立即打开
1/13

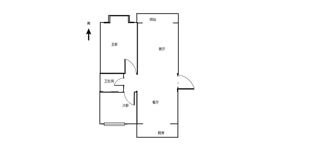
2室1厅 盛仓新苑(青翠园)

满五年
临近学校
100万
售价
2室1厅
房型
88.9平
建筑面积
潞缘地产官方提供

周边配套

详情
位置
盛仓北道与高峰路交叉口南150米
交通
教育
医疗
生活
休闲
延吉道(4号线)
813m
北仓(4号线)
1.7km
西赵庄(在建4号线)
2.1km

小区行情周报

详情
持平
咨询小区历史成交价
去咨询
免责声明:房源所示图片及其他信息仅供参考,购房时请以房本信息为准。图片、VR等房屋信息由房源发布机构发布,如有侵权等情况,请在房源展示图片右下侧点击“反馈”联系幸福里找房平台处理。幸福里找房平台禁止经纪人/咨询师“返佣返现”,请您警惕。反馈