选好房,就上幸福里找房
立即打开
1/9
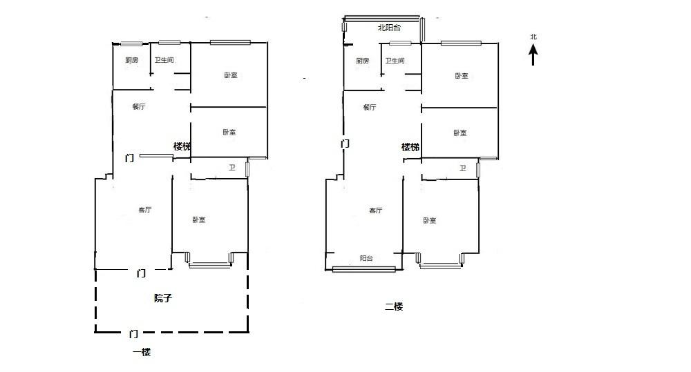
6室4厅 裕河家园
反馈
南北通透
有电梯
155万
售价
6室4厅
房型
260平
建筑面积
单价
5961元/平
挂牌
2024-01-02
楼层
低楼层/共13层
朝向
南北
装修
其他
电梯
有电梯
类型
住宅
权属
商品房
小区
裕河家园(牡丹-立交桥)
提示
签订正式租房/购房合同前切勿支付任何费用
儒房地产官方提供
关注房源动态,掌握一手信息
关注动态
周边配套
详情
位置
桂陵路2919号
交通
教育
医疗
生活
休闲
银河嘉园(20路;出回场14路顺风公交;出回场50路顺风公交)
367m
市运输局(东明902路)
376m
中国电信菏泽分公司(20路;出回场14路顺风公交)
1.1km
裕河家园
详情
小区行情周报
详情
持平
咨询小区历史成交价
去咨询
免责声明:房源所示图片及其他信息仅供参考,购房时请以房本信息为准。图片、VR等房屋信息由房源发布机构发布,如有侵权等情况,请在房源展示图片右下侧点击“反馈”联系幸福里找房平台处理。幸福里找房平台禁止经纪人/咨询师“返佣返现”,请您警惕。
反馈