省心挑好房,先上幸福里
立即打开
VR
图片
1/14
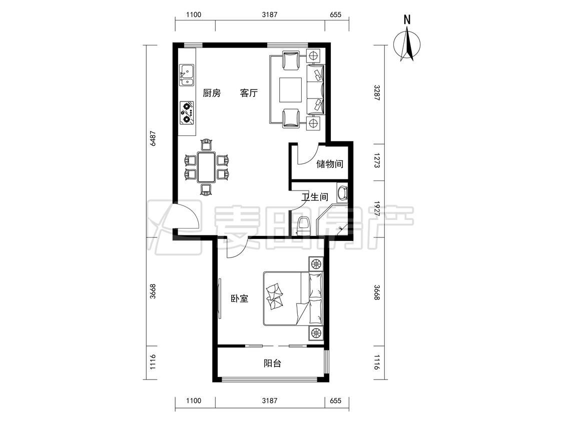
1室1厅 保利百合花园
反馈
唯一住房
南北通透
有电梯
满五年
428万
售价
1室1厅
房型
62.1平
建筑面积
单价
68921元/平
挂牌
2023-12-10
楼层
低楼层/共23层
朝向
南北
装修
简装修
电梯
有电梯
楼型
板楼
类型
住宅
权属
商品房
年代
2010年
小区
保利百合花园(丰台-丽泽桥)
点评
所在小区3位业主分享真实入住感受
提示
签订正式租房/购房合同前切勿支付任何费用
麦田龙湾店官方提供
关注房源动态,掌握一手信息
关注动态
周边配套
详情
位置
西局西路58号
交通
教育
医疗
生活
休闲
六里桥(地铁9号线, 地铁10号线)
427m
西局(14号线)
1.1km
七里庄(9号线)
1.4km
保利百合花园
详情
小区行情周报
详情
持平
咨询小区历史成交价
去咨询
小区实勘测评
详情
8.3
综合评分“良好”
配套价值
8.6
交易价值
8.3
区域价值
7.9
产品价值
8.5
1.小区坐拥园林美景,小区绿化率很高,植被种类繁多,景观优美。 2.小区主力户型为面积100㎡以下的两居室,三居多为全明格局户型,虽然户型面积不大,但是格局紧凑,实用性强。 3.周边生态资源丰富,距离各种公园和景点都不远,小区北临莲花池公园,南面有世纪森林公园,可以把小区看作是一个天然氧吧,生活在这里能够更加贴近自然,修养身心。 4.小区距离地铁10号线六里桥站和富丰苑公交站步行仅5分钟,门前还有大型双向机动车道,居民出行便利。
免责声明:房源所示图片及其他信息仅供参考,购房时请以房本信息为准。图片、VR等房屋信息由房源发布机构发布,如有侵权等情况,请在房源展示图片右下侧点击“反馈”联系幸福里平台处理。幸福里平台禁止经纪人/咨询师“返佣返现”,请您警惕。
反馈