省心挑好房,先上幸福里
立即打开
1/21

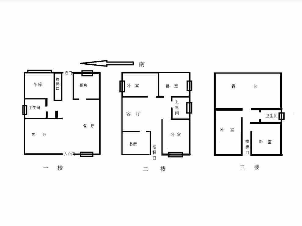
6室3厅 南湾新型社区

南北通透
100万
售价
6室3厅
房型
280平
建筑面积
信家地产官方提供

周边配套

详情
位置
011县道
交通
教育
医疗
生活
休闲
南湾办事处(2路;2路夜班)
1.3km
建业森林半岛东门(10路)
1.4km
师院附中(2路;2路夜班)
1.8km

小区行情周报

详情
持平
咨询小区历史成交价
去咨询
免责声明:房源所示图片及其他信息仅供参考,购房时请以房本信息为准。图片、VR等房屋信息由房源发布机构发布,如有侵权等情况,请在房源展示图片右下侧点击“反馈”联系幸福里平台处理。幸福里平台禁止经纪人/咨询师“返佣返现”,请您警惕。反馈