省心挑好房,先上幸福里
立即打开
VR
图片
1/15
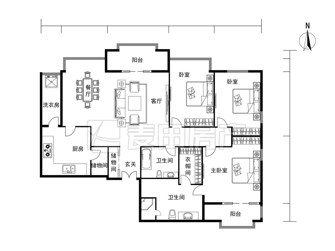
3室2厅 光彩国际公寓
反馈
有电梯
临近地铁
临近学校
1790万
售价
3室2厅
房型
216平
建筑面积
单价
82870元/平
挂牌
2023-11-10
楼层
低楼层/共32层
朝向
东南
装修
精装修
电梯
有电梯
楼型
塔楼
类型
住宅
权属
商品房
年代
2003年
小区
光彩国际公寓(朝阳-朝外大街)
提示
签订正式租房/购房合同前切勿支付任何费用
麦田龙湾店官方提供
关注房源动态,掌握一手信息
关注动态
周边配套
详情
位置
工人体育场西路18号
交通
教育
医疗
生活
休闲
东大桥(6号线)
774m
工人体育场(地铁17号线北段;地铁3号线)
821m
朝阳门(2号线)
943m
光彩国际公寓
详情
小区行情周报
详情
持平
咨询小区历史成交价
去咨询
免责声明:房源所示图片及其他信息仅供参考,购房时请以房本信息为准。图片、VR等房屋信息由房源发布机构发布,如有侵权等情况,请在房源展示图片右下侧点击“反馈”联系幸福里平台处理。幸福里平台禁止经纪人/咨询师“返佣返现”,请您警惕。
反馈