省心挑好房,先上幸福里
立即打开
1/19
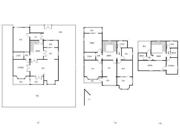
4室2厅 古猗庄园
反馈
品质改善
唯一住房
有电梯
满五年
1200万
售价
4室2厅
房型
241.98平
建筑面积
单价
49590元/平
挂牌
2023-09-07
楼层
底层/共3层
朝向
南
装修
精装修
电梯
有电梯
楼型
板楼
类型
别墅
权属
商品房
年代
2005年
小区
古猗庄园(嘉定-南翔)
提示
签订正式租房/购房合同前切勿支付任何费用
港嘉房地产官方提供
关注房源动态,掌握一手信息
关注动态
周边配套
详情
位置
真南路3911弄
交通
教育
医疗
生活
休闲
南翔(在建嘉闵线;11号线)
665m
桃浦新村(11号线)
2.4km
丰翔路瑞林路(821路;嘉定110路;嘉定118路;嘉定125路;嘉定58路)
581m
古猗庄园
详情
小区行情周报
详情
持平
咨询小区历史成交价
去咨询
免责声明:房源所示图片及其他信息仅供参考,购房时请以房本信息为准。图片、VR等房屋信息由房源发布机构发布,如有侵权等情况,请在房源展示图片右下侧点击“反馈”联系幸福里平台处理。幸福里平台禁止经纪人/咨询师“返佣返现”,请您警惕。
反馈