省心挑好房,先上幸福里
立即打开
VR
图片
1/13
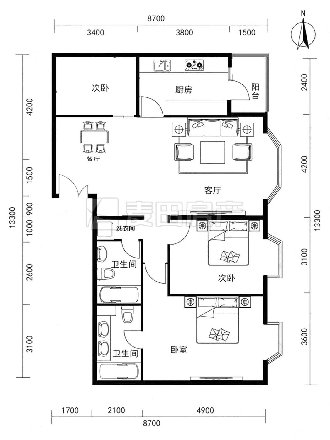
3室2厅 蓝堡国际公寓(北区)
反馈
品质改善
唯一住房
有电梯
满五年
1100万
售价
3室2厅
房型
130.67平
建筑面积
单价
84181元/平
挂牌
2023-09-01
楼层
低楼层/共19层
朝向
东
装修
精装修
电梯
有电梯
楼型
板塔结合
类型
住宅
权属
商品房
年代
2004年
小区
蓝堡国际公寓(北区)(朝阳-国贸CBD)
点评
所在小区5位业主分享真实入住感受
提示
签订正式租房/购房合同前切勿支付任何费用
麦田龙湾店官方提供
关注房源动态,掌握一手信息
关注动态
周边配套
详情
位置
西大望路28号
交通
教育
医疗
生活
休闲
红庙(在建22号线/平谷线;14号线)
413m
大望路(在建28号线;14号线;1号线/八通线)
425m
光华路(在建28号线)
608m
蓝堡国际公寓(北区)
详情
小区行情周报
详情
持平
咨询小区历史成交价
去咨询
免责声明:房源所示图片及其他信息仅供参考,购房时请以房本信息为准。图片、VR等房屋信息由房源发布机构发布,如有侵权等情况,请在房源展示图片右下侧点击“反馈”联系幸福里平台处理。幸福里平台禁止经纪人/咨询师“返佣返现”,请您警惕。
反馈