省心挑好房,先上幸福里
立即打开
1/10

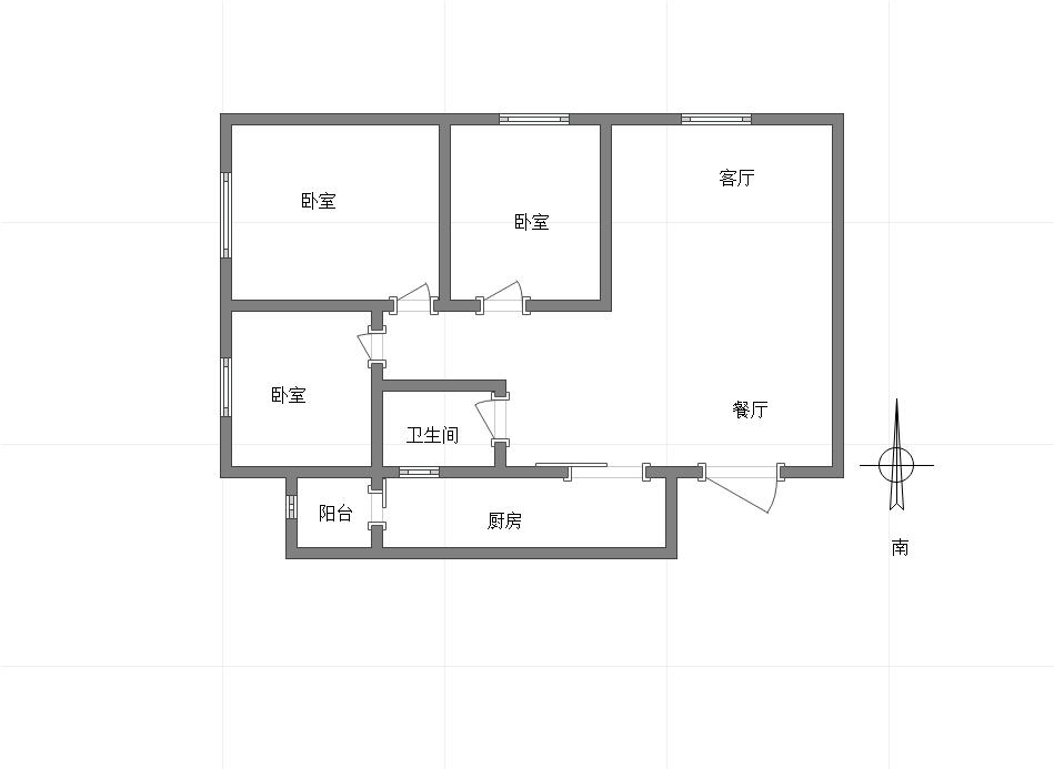
3室2厅 中德江湾丽景

有电梯
临近地铁
90万
售价
3室2厅
房型
101平
建筑面积
到家了官方提供

周边配套

详情
位置
盘溪五支路
交通
教育
医疗
生活
休闲
玉带山(松石大道550号玉带山地铁站1号口步行70米)
505m
石马立交(在建4号线西延伸段)
785m
石马河站(127路;1610路;208路;236路;236路区间;545路;548路;605路夜班;615路;640路;夜640线)
518m

小区行情周报

详情
持平
咨询小区历史成交价
去咨询
免责声明:房源所示图片及其他信息仅供参考,购房时请以房本信息为准。图片、VR等房屋信息由房源发布机构发布,如有侵权等情况,请在房源展示图片右下侧点击“反馈”联系幸福里平台处理。幸福里平台禁止经纪人/咨询师“返佣返现”,请您警惕。反馈