选好房,就上幸福里找房
立即打开
1/10
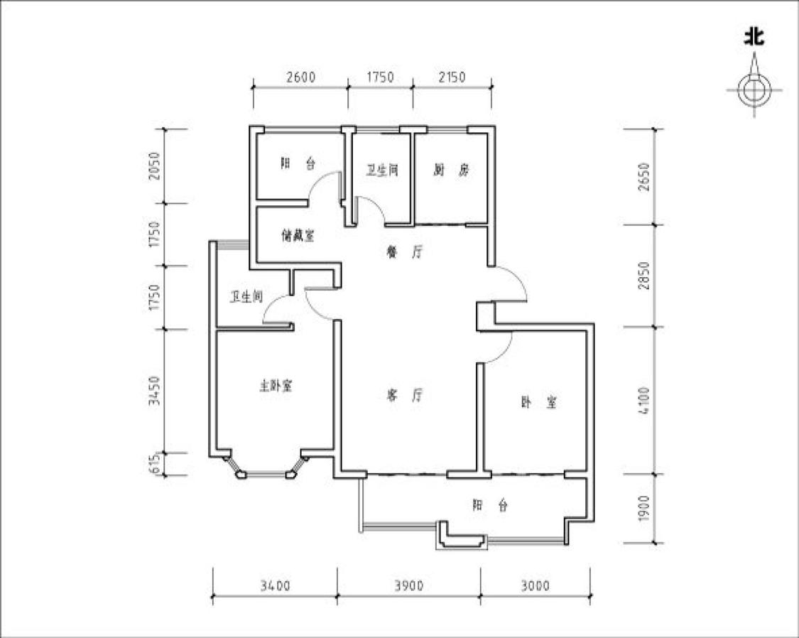
3室2厅 金旅公园里
反馈
唯一住房
南北通透
满两年
67万
售价
3室2厅
房型
93.13平
建筑面积
单价
7194元/平
挂牌
2023-03-21
楼层
中楼层/共5层
朝向
南北
装修
精装修
电梯
无电梯
类型
住宅
权属
商品房
小区
金旅公园里(贾汪-新夏路)
提示
签订正式租房/购房合同前切勿支付任何费用
恒安房产官方提供
关注房源动态,掌握一手信息
关注动态
周边配套
详情
位置
桃源路,近转型大道
交通
教育
医疗
生活
休闲
新工区(969路)
841m
文泽园(游666路;贾汪环城公交东行;贾汪环城公交西行)
893m
江苏安全技术职业学院(26路)
1.0km
金旅公园里
详情
小区行情周报
详情
持平
咨询小区历史成交价
去咨询
免责声明:房源所示图片及其他信息仅供参考,购房时请以房本信息为准。图片、VR等房屋信息由房源发布机构发布,如有侵权等情况,请在房源展示图片右下侧点击“反馈”联系幸福里找房平台处理。幸福里找房平台禁止经纪人/咨询师“返佣返现”,请您警惕。
反馈