省心挑好房,先上幸福里
立即打开
1/12
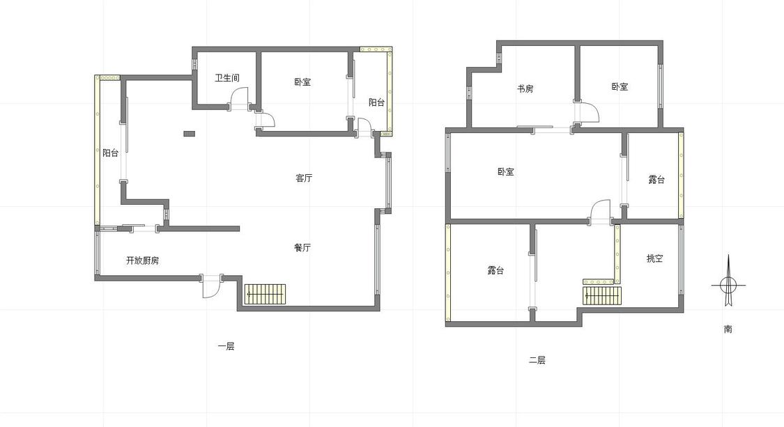
3室2厅 枫林秀水
反馈
降
18.0万
临近地铁
绿化率高
198万
售价
3室2厅
房型
179.7平
建筑面积
单价
11018元/平
挂牌
2023-02-20
楼层
高楼层/共4层
朝向
东
装修
其他
电梯
无电梯
类型
住宅
年代
2004年
小区
枫林秀水(渝北-龙湖)
提示
签订正式租房/购房合同前切勿支付任何费用
到家了官方提供
关注房源动态,掌握一手信息
关注动态
周边配套
详情
位置
锦橙路8号
交通
教育
医疗
生活
休闲
洪湖东路(环线)
879m
冉家坝(环线)
967m
光电园(黄杨路渝兴广场西南侧)
1.2km
枫林秀水
详情
小区行情周报
详情
持平
咨询小区历史成交价
去咨询
免责声明:房源所示图片及其他信息仅供参考,购房时请以房本信息为准。图片、VR等房屋信息由房源发布机构发布,如有侵权等情况,请在房源展示图片右下侧点击“反馈”联系幸福里平台处理。幸福里平台禁止经纪人/咨询师“返佣返现”,请您警惕。
反馈