省心挑好房,先上幸福里
立即打开
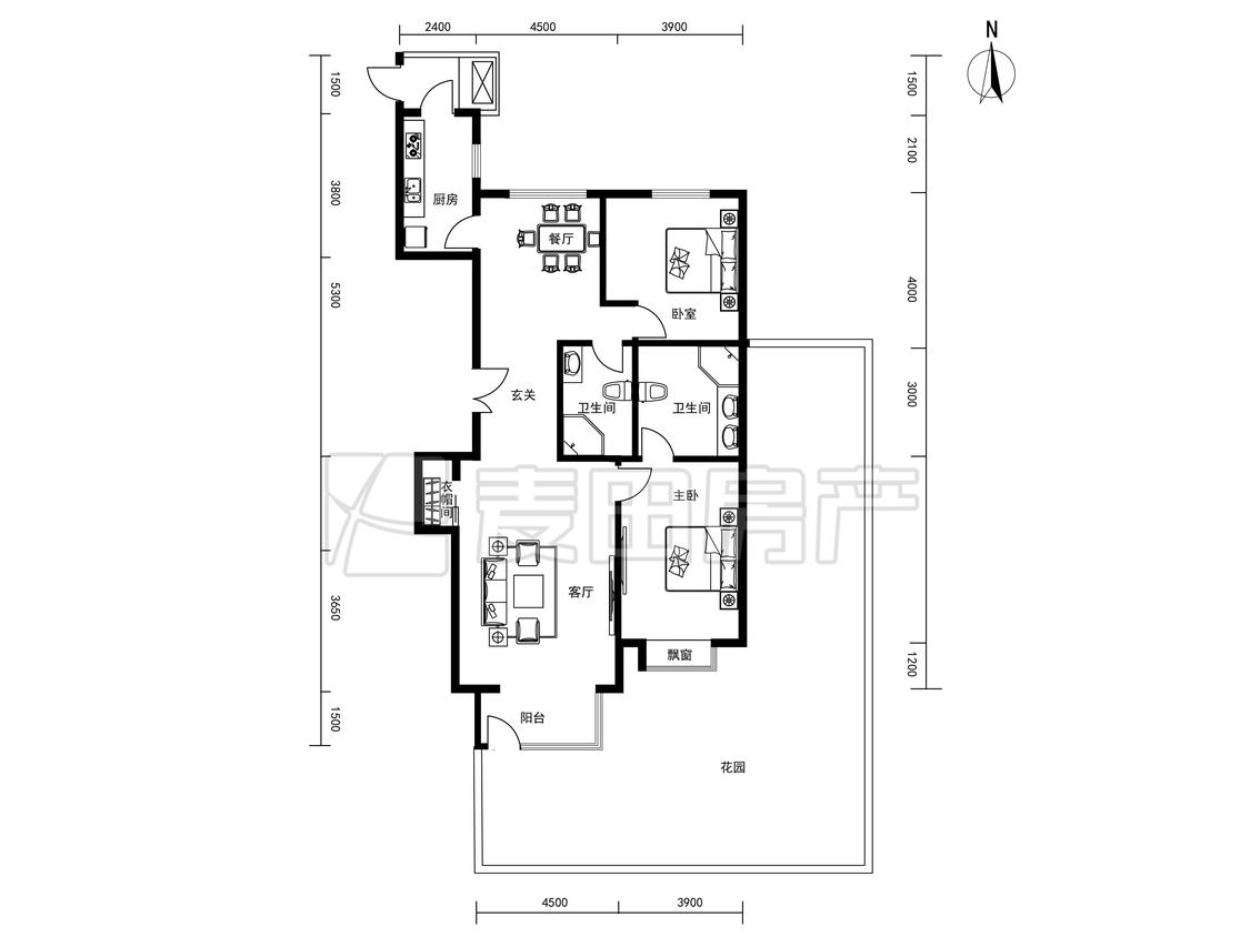
VR
图片
1/23

周边配套

详情
位置
太阳宫二街1号
交通
教育
医疗
生活
休闲
芍药居(10号线)
518m
太阳宫(太阳宫中路凯德MALL太阳宫店北侧约30米)
870m
西坝河(西坝河南路1号一层)
1.4km

小区行情周报

详情
持平
咨询小区历史成交价
去咨询
免责声明:房源所示图片及其他信息仅供参考,购房时请以房本信息为准。图片、VR等房屋信息由房源发布机构发布,如有侵权等情况,请在房源展示图片右下侧点击“反馈”联系幸福里平台处理。幸福里平台禁止经纪人/咨询师“返佣返现”,请您警惕。反馈