选好房,就上幸福里找房
立即打开
1/13
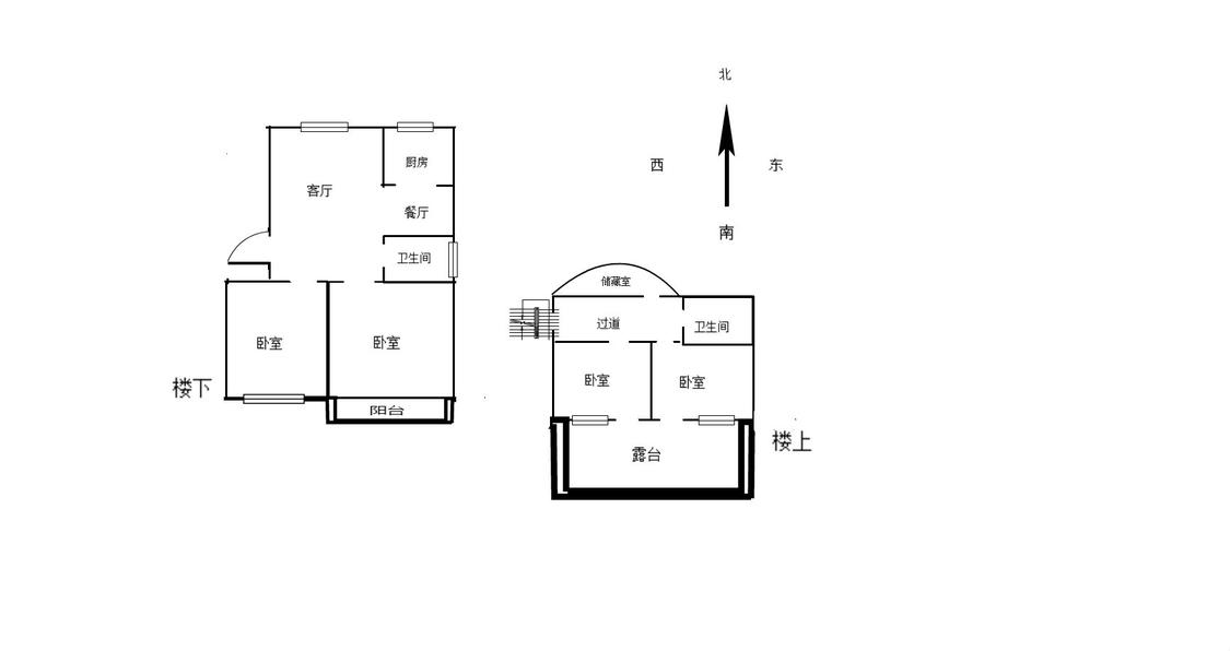
3室2厅 华泰小区
反馈
满两年
临近学校
79万
售价
3室2厅
房型
74平
建筑面积
单价
10675元/平
挂牌
2022-09-15
楼层
高楼层/共5层
朝向
南
装修
简装修
电梯
无电梯
类型
住宅
权属
商品房
小区
华泰小区(永嘉-永嘉城区)
提示
签订正式租房/购房合同前切勿支付任何费用
力仕地产官方提供
关注房源动态,掌握一手信息
关注动态
周边配套
详情
位置
码道西街,近环城西路
交通
教育
医疗
生活
休闲
城西小学(上塘-银场;上塘301路;上塘303路;上塘306路;上塘310路;上塘311路;上塘社区巴士3号线;永嘉201路;永嘉203路;永嘉309路;永嘉501路;永嘉502路)
603m
钱塘世纪大酒店(停运上塘社区巴士7号线;上塘310路)
767m
招呼站(永嘉宾馆)(上塘社区巴士3号线)
831m
华泰小区
详情
免责声明:房源所示图片及其他信息仅供参考,购房时请以房本信息为准。图片、VR等房屋信息由房源发布机构发布,如有侵权等情况,请在房源展示图片右下侧点击“反馈”联系幸福里找房平台处理。幸福里找房平台禁止经纪人/咨询师“返佣返现”,请您警惕。
反馈