省心挑好房,先上幸福里
立即打开
VR
图片
1/22
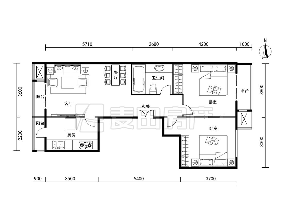
2室2厅 润枫水尚
反馈
唯一住房
有电梯
满五年
临近地铁
750万
售价
2室2厅
房型
94.39平
建筑面积
单价
79457元/平
挂牌
2022-04-14
楼层
中楼层/共17层
朝向
东西
装修
精装修
电梯
有电梯
楼型
板楼
类型
住宅
权属
商品房
年代
2008年
小区
润枫水尚(朝阳-朝青)
点评
所在小区1位业主分享真实入住感受
提示
签订正式租房/购房合同前切勿支付任何费用
麦田龙湾店官方提供
关注房源动态,掌握一手信息
关注动态
周边配套
详情
位置
青年路西里5号院
交通
教育
医疗
生活
休闲
青年路(6号线)
582m
罗森(十里堡地铁站)(朝阳北路129号院2号楼1层107-109)
1.0km
十里堡(6号线)
1.1km
润枫水尚
详情
小区行情周报
详情
持平
咨询小区历史成交价
去咨询
免责声明:房源所示图片及其他信息仅供参考,购房时请以房本信息为准。图片、VR等房屋信息由房源发布机构发布,如有侵权等情况,请在房源展示图片右下侧点击“反馈”联系幸福里平台处理。幸福里平台禁止经纪人/咨询师“返佣返现”,请您警惕。
反馈