省心挑好房,先上幸福里
立即打开
1/26
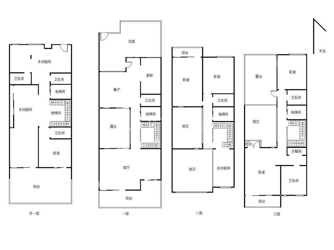
5室2厅 中信红树湾
反馈
满五年
别墅
1300万
售价
5室2厅
房型
230平
建筑面积
单价
56521元/平
挂牌
2022-04-02
楼层
低楼层/共1层
朝向
东南
装修
毛坯
电梯
无电梯
类型
别墅
权属
商品房
小区
中信红树湾(香洲-南屏)
提示
签订正式租房/购房合同前切勿支付任何费用
邦安家官方提供
关注房源动态,掌握一手信息
关注动态
周边配套
详情
位置
前河西路333号
交通
教育
医疗
生活
休闲
茂丰路北[公交站](Z12路)
206m
华发新城(珠海大道东)
734m
港二路(101路环线;21路;46路;55路)
944m
中信红树湾
详情
小区行情周报
详情
持平
咨询小区历史成交价
去咨询
免责声明:房源所示图片及其他信息仅供参考,购房时请以房本信息为准。图片、VR等房屋信息由房源发布机构发布,如有侵权等情况,请在房源展示图片右下侧点击“反馈”联系幸福里平台处理。幸福里平台禁止经纪人/咨询师“返佣返现”,请您警惕。
反馈