省心挑好房,先上幸福里
立即打开
1/11

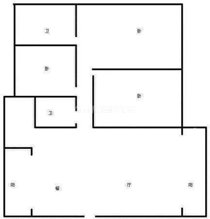
3室2厅 文翠园

品质改善
南北通透
满五年
临近地铁
165万
售价
3室2厅
房型
117.17平
建筑面积
优居官方提供

周边配套

详情
位置
新学巷199号
交通
教育
医疗
生活
休闲
小屯(二环快速A线北保利大家南侧约40米)
1.5km
西苑(人民西路山灞大厦西南侧约110米)
1.6km
海屯路(高新小屯汽车城)
1.7km

小区行情周报

详情
持平
咨询小区历史成交价
去咨询
免责声明:房源所示图片及其他信息仅供参考,购房时请以房本信息为准。图片、VR等房屋信息由房源发布机构发布,如有侵权等情况,请在房源展示图片右下侧点击“反馈”联系幸福里平台处理。幸福里平台禁止经纪人/咨询师“返佣返现”,请您警惕。反馈