省心挑好房,先上幸福里
立即打开
VR
图片
1/32
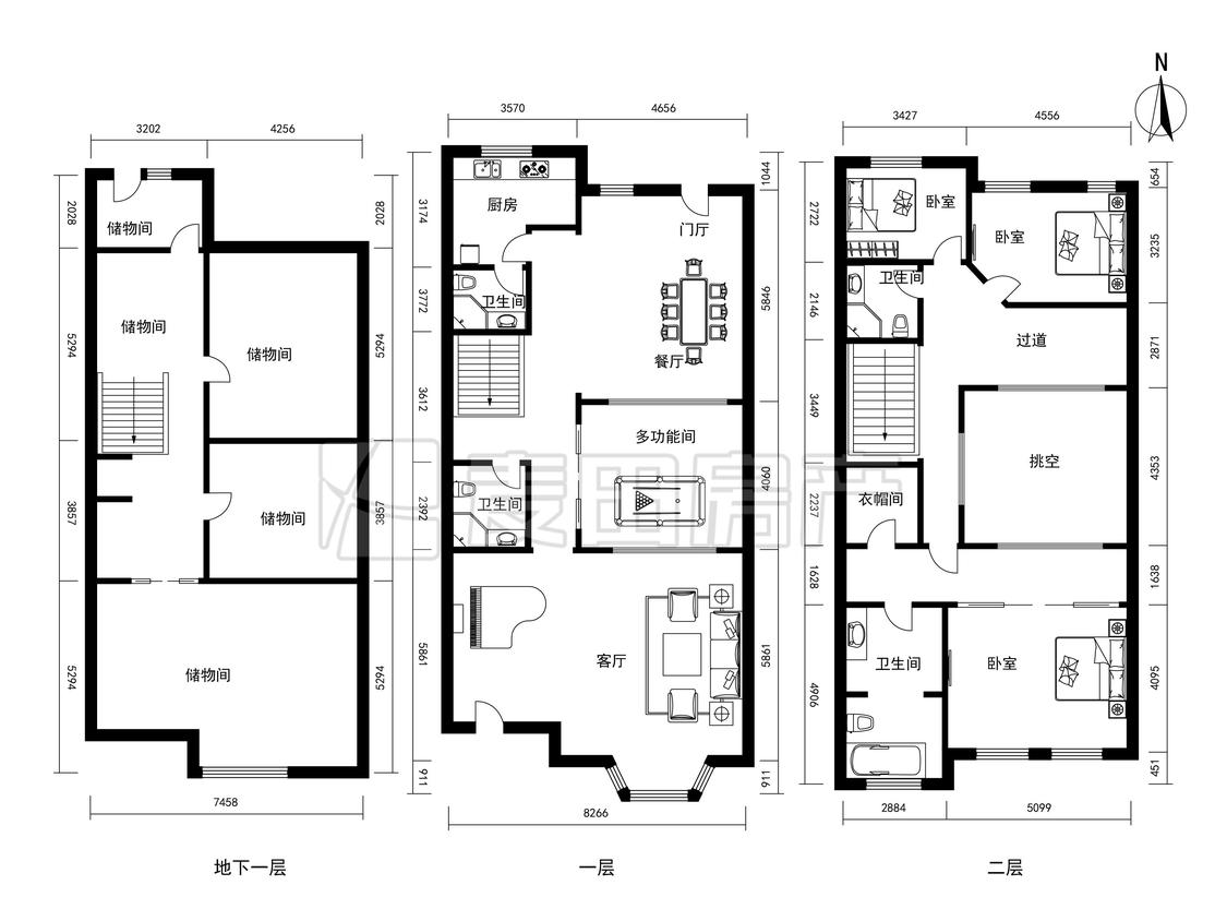
4室2厅 润泽庄园
反馈
降
130.0万
唯一住房
南北通透
满两年
2150万
售价
4室2厅
房型
315.5平
建筑面积
单价
68145元/平
挂牌
2022-01-05
楼层
低楼层/共1层
朝向
南北
装修
精装修
电梯
无电梯
楼型
板楼
权属
商品房
年代
2010年
小区
润泽庄园(朝阳-北苑)
点评
所在小区4位业主分享真实入住感受
提示
签订正式租房/购房合同前切勿支付任何费用
麦田官方提供
关注房源动态,掌握一手信息
关注动态
周边配套
详情
位置
红军营西路甲2号
交通
教育
医疗
生活
休闲
清河营(17号线北段)
687m
天通苑东(在建18号线)
1.4km
北苑(朝清路时代庄园北侧约130米)
1.5km
润泽庄园
详情
小区行情周报
详情
持平
咨询小区历史成交价
去咨询
小区实勘测评
详情
8.0
综合评分“良好”
区域价值
7.8
产品价值
8.6
配套价值
7.3
交易价值
8.3
1、小区的整体品质较好,拥有高品质外立面和高达45%的绿化率,生活体验感强。 2、小区内部设施完善,内配有喷泉、篮球场、中心花园等,居民生活舒适。 3、小区车位比1:1.5,车位充足,居民很少有停车难的困扰。 4、小区周边即是大公园、俱乐部且还有大型商场,周边配套完善。
免责声明:房源所示图片及其他信息仅供参考,购房时请以房本信息为准。图片、VR等房屋信息由房源发布机构发布,如有侵权等情况,请在房源展示图片右下侧点击“反馈”联系幸福里平台处理。幸福里平台禁止经纪人/咨询师“返佣返现”,请您警惕。
反馈