选好房,就上幸福里找房
立即打开
VR
图片
1/16
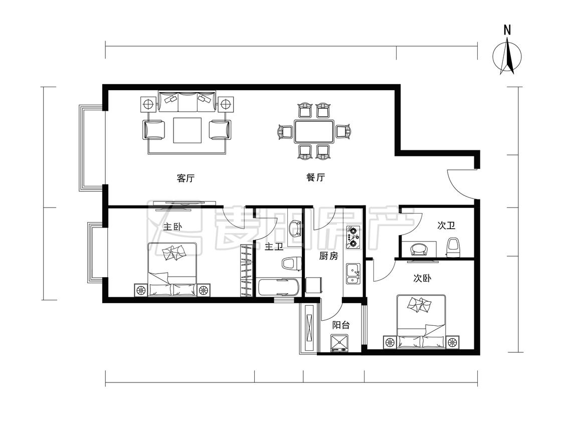
2室2厅 澳林PARK国际公寓
反馈
降
55.0万
唯一住房
有电梯
满五年
595万
售价
2室2厅
房型
113.27平
建筑面积
单价
52529元/平
挂牌
2021-06-16
楼层
高楼层/共24层
朝向
西
装修
精装修
电梯
有电梯
楼型
塔楼
类型
住宅
权属
商品房
年代
2005年
小区
澳林PARK国际公寓(朝阳-奥林匹克公园)
点评
所在小区2位业主分享真实入住感受
提示
签订正式租房/购房合同前切勿支付任何费用
麦田房产店官方提供
关注房源动态,掌握一手信息
关注动态
周边配套
详情
位置
林萃西里43号
交通
教育
医疗
生活
休闲
林萃桥(8号线)
666m
北沙滩(清华东路小学北侧)
1.7km
六道口(学院路弘彧大厦东侧约40米)
2.2km
澳林PARK国际公寓
详情
小区行情周报
详情
持平
咨询小区历史成交价
去咨询
小区实勘测评
详情
8.1
综合评分“良好”
区域价值
8.3
产品价值
8.1
配套价值
7.9
交易价值
8.0
1、居住品质方面:小区绿化维护水平高,居住环境好,且楼间距大,利于采光,有效提升了居民的生活舒适度。 2、建筑品质方面:小区单元楼采用防水隔音设计,外立面新颖,材料选材好,建筑品质高。 3、价格方面:小区价格远低于奥林匹克板块平均房价,购房成本相对较低。 4、配套设施方面:小区外设施配套齐全,底商多,方便居民购买生活日用品。靠近地铁站,交通便利,且附近医院较多,就医便利。
免责声明:房源所示图片及其他信息仅供参考,购房时请以房本信息为准。图片、VR等房屋信息由房源发布机构发布,如有侵权等情况,请在房源展示图片右下侧点击“反馈”联系幸福里找房平台处理。幸福里找房平台禁止经纪人/咨询师“返佣返现”,请您警惕。
反馈