省心挑好房,先上幸福里
立即打开
VR
图片
1/20
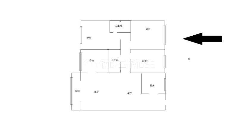
4室2厅 春晖小区(春都里东院)
反馈
南北通透
临近地铁
临近学校
绿化率高
140万
售价
4室2厅
房型
158.72平
建筑面积
单价
8820元/平
挂牌
2022-06-12
楼层
中楼层/共7层
朝向
南北
装修
精装修
电梯
无电梯
类型
住宅
权属
商品房
年代
1998年
小区
春晖小区(春都里东院)(五华-丰宁)
提示
签订正式租房/购房合同前切勿支付任何费用
优居官方提供
关注房源动态,掌握一手信息
关注动态
周边配套
详情
位置
茭菱路718号
交通
教育
医疗
生活
休闲
梁家河(3号线)
537m
西苑(人民西路山灞大厦西南侧约110米)
1.1km
金鼎山北路(4号线)
1.8km
春晖小区(春都里东院)
详情
小区行情周报
详情
持平
咨询小区历史成交价
去咨询
免责声明:房源所示图片及其他信息仅供参考,购房时请以房本信息为准。图片、VR等房屋信息由房源发布机构发布,如有侵权等情况,请在房源展示图片右下侧点击“反馈”联系幸福里平台处理。幸福里平台禁止经纪人/咨询师“返佣返现”,请您警惕。
反馈