选好房,就上幸福里找房
立即打开
1/10
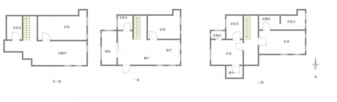
4室2厅 天景山院里
反馈
南北通透
临近地铁
绿化率高
490万
售价
4室2厅
房型
252平
建筑面积
单价
19444元/平
挂牌
2021-02-07
楼层
低楼层/共1层
朝向
南北
装修
其他
电梯
无电梯
小区
天景山院里(南岸-七公里)
提示
签订正式租房/购房合同前切勿支付任何费用
到家了官方提供
关注房源动态,掌握一手信息
关注动态
周边配套
详情
位置
学府大道69号
交通
教育
医疗
生活
休闲
重庆交通大学(3号线)
757m
八公里(渝南大道铠恩国际家居名都西北侧)
822m
六公里(学府大道渝能国际西南侧)
1.8km
天景山院里
详情
免责声明:房源所示图片及其他信息仅供参考,购房时请以房本信息为准。图片、VR等房屋信息由房源发布机构发布,如有侵权等情况,请在房源展示图片右下侧点击“反馈”联系幸福里找房平台处理。幸福里找房平台禁止经纪人/咨询师“返佣返现”,请您警惕。
反馈