选好房,就上幸福里找房
立即打开
1/10
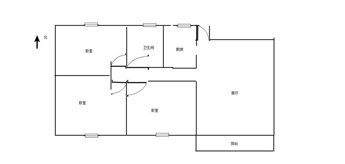
3室2厅 利泽海月
反馈
有电梯
楼龄新
310万
售价
3室2厅
房型
93平
建筑面积
单价
33333元/平
挂牌
2020-12-22
楼层
中楼层/共26层
朝向
其他
电梯
有电梯
类型
住宅
权属
商品房
年代
2018年
小区
利泽海月(吉阳-吉阳区)
提示
签订正式租房/购房合同前切勿支付任何费用
德亦地产官方提供
关注房源动态,掌握一手信息
关注动态
周边配套
详情
位置
迎宾路
交通
教育
医疗
生活
休闲
迎宾花园(1路;23路;27路;35路;49路;6路环线;7路环线;海口-三亚)
574m
丹州小区(10路;36路;45路;49路;50路;55路;城际1号线;城际1号线18:00后;旅游专线)
631m
海韵假日(10路;36路;45路;49路;50路)
987m
利泽海月
详情
小区行情周报
详情
持平
咨询小区历史成交价
去咨询
免责声明:房源所示图片及其他信息仅供参考,购房时请以房本信息为准。图片、VR等房屋信息由房源发布机构发布,如有侵权等情况,请在房源展示图片右下侧点击“反馈”联系幸福里找房平台处理。幸福里找房平台禁止经纪人/咨询师“返佣返现”,请您警惕。
反馈