省心挑好房,先上幸福里
立即打开
1/18
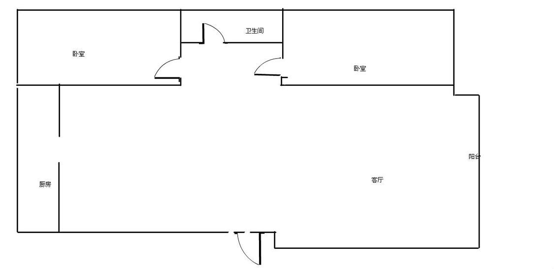
2室1厅 正友花园
反馈
南北通透
80万
售价
2室1厅
房型
91.88平
建筑面积
单价
8707元/平
挂牌
2020-03-15
楼层
中楼层/共7层
朝向
南北
装修
精装修
电梯
无电梯
类型
住宅
权属
商品房
小区
正友花园(黄岛-辛安)
提示
签订正式租房/购房合同前切勿支付任何费用
中驰房产官方提供
关注房源动态,掌握一手信息
关注动态
周边配套
详情
位置
创业路369号
交通
教育
医疗
生活
休闲
黄河路(在建6号线)
2.3km
港头(6号线)
2.8km
东小庄小区(开发区15路刘王大庄延伸线;开发区36路;开发区55路;开发区东17路;黄岛15路;黄岛46路)
961m
正友花园
详情
小区行情周报
详情
持平
咨询小区历史成交价
去咨询
免责声明:房源所示图片及其他信息仅供参考,购房时请以房本信息为准。图片、VR等房屋信息由房源发布机构发布,如有侵权等情况,请在房源展示图片右下侧点击“反馈”联系幸福里平台处理。幸福里平台禁止经纪人/咨询师“返佣返现”,请您警惕。
反馈