选好房,就上幸福里找房
立即打开
1/6
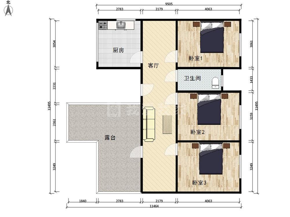
3室1厅 芍药居北里
反馈
临近地铁
800万
售价
3室1厅
房型
97.89平
建筑面积
单价
81724元/平
挂牌
2019-11-01
楼层
顶层/共7层
朝向
东西
装修
精装修
电梯
无电梯
楼型
板楼
类型
住宅
权属
商品房
年代
1995年
小区
芍药居北里(朝阳-芍药居)
点评
所在小区36位业主分享真实入住感受
提示
签订正式租房/购房合同前切勿支付任何费用
我爱我家官方提供
关注房源动态,掌握一手信息
关注动态
周边配套
详情
位置
北四环东路和育慧南路交叉口东侧
交通
教育
医疗
生活
休闲
芍药居(10号线)
937m
望京西(15号线)
1.6km
惠新西街北口(5号线)
1.6km
芍药居北里
详情
小区行情周报
详情
持平
咨询小区历史成交价
去咨询
小区实勘测评
详情
8.2
综合评分“良好”
区域价值
8.2
产品价值
8.0
配套价值
8.1
交易价值
8.2
1、绿化好、环境美,道路宽敞干净,居住体验好。 2、内部配套较完善,小区里有个被绿树环绕的广场,居民可以到广场唠嗑、下棋,生活氛围较好。 3、小区周边配套齐全,生活超市、水果店、蔬菜超市、理发店、药店、诊所、饭店等,基本生活需求基本不用愁,生活方便。 4、交通便利,通勤方便,小区离地铁芍药居站一公里左右,可乘坐地铁10号和5号线。此外五百米范围内就有4个左右公交站,住在这里通勤即可快人一步。
免责声明:房源所示图片及其他信息仅供参考,购房时请以房本信息为准。图片、VR等房屋信息由房源发布机构发布,如有侵权等情况,请在房源展示图片右下侧点击“反馈”联系幸福里找房平台处理。幸福里找房平台禁止经纪人/咨询师“返佣返现”,请您警惕。
反馈