选好房,就上幸福里找房
立即打开
1/11

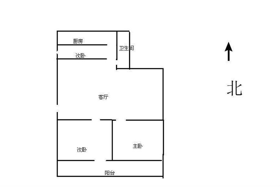
3室1厅 泰方家园

满五年
临近学校
37万
售价
3室1厅
房型
84平
建筑面积
泰安市理想房地产官方提供

周边配套

详情
位置
向阳街
交通
教育
医疗
生活
休闲
国土资源局(新泰17路;新泰2路)
228m
桃花源(肥城101路;肥城4路/K4路;肥城K12路;肥城K4路;肥城K5路)
235m
法院(肥城101路)
587m

小区行情周报

详情
持平
咨询小区历史成交价
去咨询
免责声明:房源所示图片及其他信息仅供参考,购房时请以房本信息为准。图片、VR等房屋信息由房源发布机构发布,如有侵权等情况,请在房源展示图片右下侧点击“反馈”联系幸福里找房平台处理。幸福里找房平台禁止经纪人/咨询师“返佣返现”,请您警惕。反馈