省心挑好房,先上幸福里
立即打开
1/20
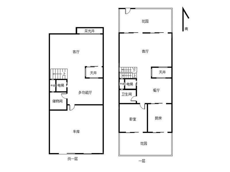
7室3厅 中海大山地(北区)
反馈
唯一住房
满五年
临近地铁
临近学校
1650万
售价
7室3厅
房型
290.73平
建筑面积
房型
7室3厅
面积
290.73平
挂牌
2024-04-17
楼层
低楼层/共1层
朝向
东
装修
精装修
电梯
无电梯
类型
住宅
权属
商品房
年代
2008年
小区
中海大山地(北区)(龙岗-横岗)
提示
签订正式租房/购房合同前切勿支付任何费用
Q房网官方提供
关注房源动态,掌握一手信息
关注动态
周边配套
详情
位置
横岗-梧桐路8号
交通
教育
医疗
生活
休闲
六约北(14号线/东部快线)
398m
六约(3号线/龙岗线)
1.3km
塘坑(3号线/龙岗线)
1.8km
中海大山地(北区)
详情
免责声明:房源所示图片及其他信息仅供参考,购房时请以房本信息为准。图片、VR等房屋信息由房源发布机构发布,如有侵权等情况,请在房源展示图片右下侧点击“反馈”联系幸福里平台处理。幸福里平台禁止经纪人/咨询师“返佣返现”,请您警惕。
反馈