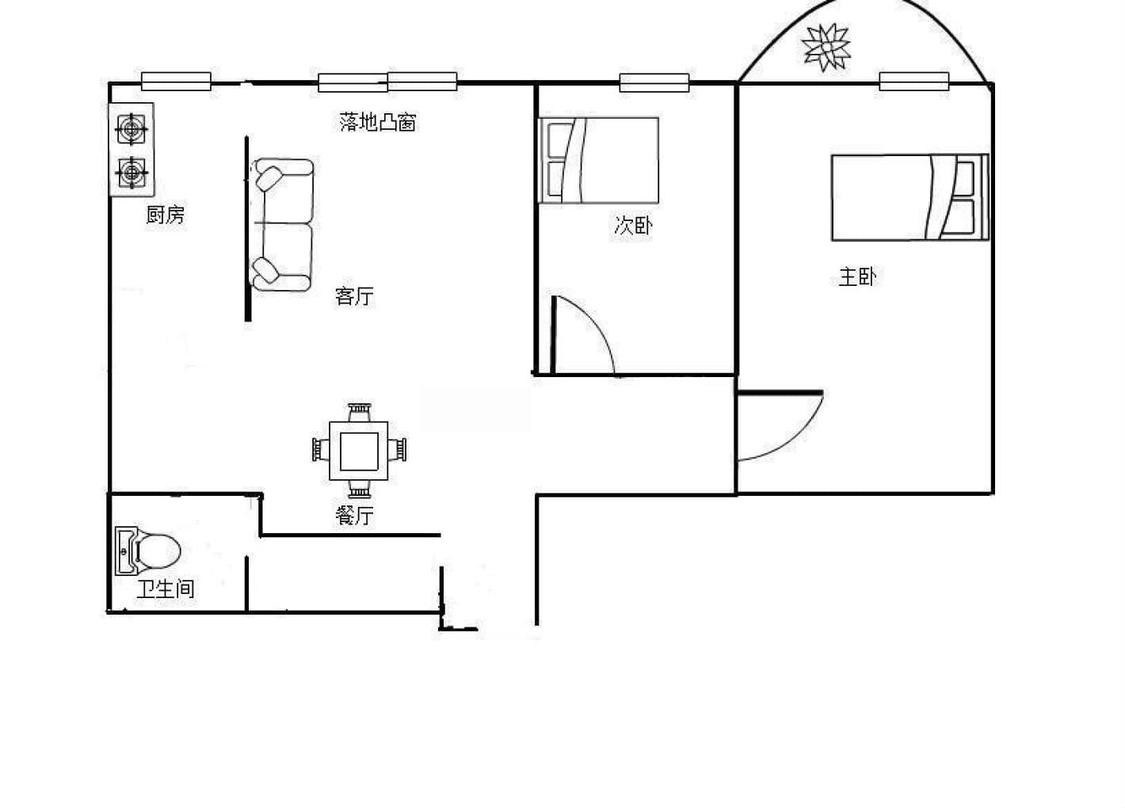
选好房,就上幸福里找房
立即打开
1/10

周边配套

详情
位置
刺桐路763号
交通
教育
医疗
生活
休闲
圣湖小区(圣湖路19号)
406m
北淮路(X2路)
409m
青少年宫(田安北路丰泽广场旁)
467m
免责声明:房源所示图片及其他信息仅供参考,购房时请以房本信息为准。图片、VR等房屋信息由房源发布机构发布,如有侵权等情况,请在房源展示图片右下侧点击“反馈”联系幸福里找房平台处理。幸福里找房平台禁止经纪人/咨询师“返佣返现”,请您警惕。反馈