省心挑好房,先上幸福里
立即打开
1/8

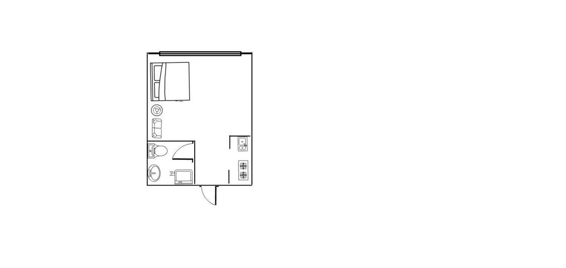
1室1厅 都市港湾

刚需优选
35万
售价
1室1厅
房型
41平
建筑面积
中驰房产官方提供

周边配套

详情
位置
黄河中路16号
交通
教育
医疗
生活
休闲
黄河路(在建6号线)
614m
马家楼[地铁站](6号线)
1.6km
淮河西路(在建6号线)
1.7km

小区行情周报

详情
持平
咨询小区历史成交价
去咨询
免责声明:房源所示图片及其他信息仅供参考,购房时请以房本信息为准。图片、VR等房屋信息由房源发布机构发布,如有侵权等情况,请在房源展示图片右下侧点击“反馈”联系幸福里平台处理。幸福里平台禁止经纪人/咨询师“返佣返现”,请您警惕。反馈