选好房,就上幸福里找房
立即打开
1/16

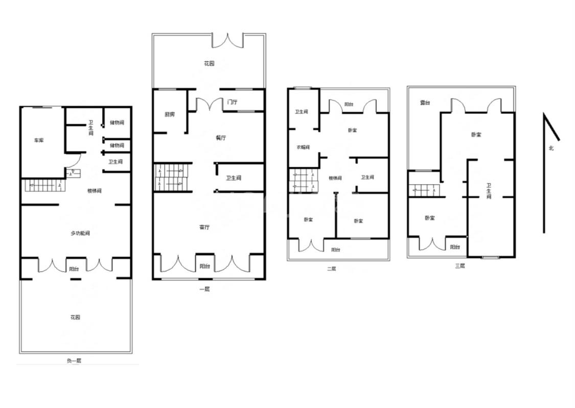
5室3厅 比华利山庄

满五年
临近学校
绿化率高
560万
售价
5室3厅
房型
281.2平
建筑面积
乐运来房产官方提供

周边配套

详情
位置
长信路6号
交通
教育
医疗
生活
休闲
优享社优客工场(209路;92路)
278m
中石化海南分公司(208路;78路;92路)
674m
长信蓝郡(209路;86路)
966m
免责声明:房源所示图片及其他信息仅供参考,购房时请以房本信息为准。图片、VR等房屋信息由房源发布机构发布,如有侵权等情况,请在房源展示图片右下侧点击“反馈”联系幸福里找房平台处理。幸福里找房平台禁止经纪人/咨询师“返佣返现”,请您警惕。反馈