选好房,就上幸福里找房
立即打开
1/16
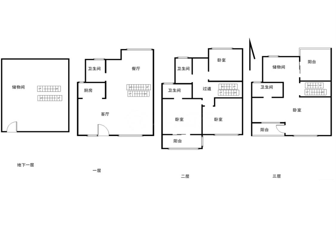
6室2厅 淮安院子
反馈
满两年
别墅
临近学校
390万
售价
6室2厅
房型
264.03平
建筑面积
单价
14771元/平
挂牌
2026-02-01
楼层
低楼层/共3层
朝向
南
装修
毛坯
电梯
无电梯
楼型
板楼
类型
别墅
权属
商品房
小区
淮安院子(淮安区-新城市广场)
提示
签订正式租房/购房合同前切勿支付任何费用
姐妹房产官方提供
关注房源动态,掌握一手信息
关注动态
周边配套
详情
位置
沈坤路周恩来红军小学东南侧约90米
交通
教育
医疗
生活
休闲
沈坤路·镇海路(停运游9路;618路;游11线)
207m
淮安汽车客运东站(华西路2号)
341m
镇海村(606路;618路;67路)
421m
淮安院子
详情
小区行情周报
详情
持平
咨询小区历史成交价
去咨询
免责声明:房源所示图片及其他信息仅供参考,购房时请以房本信息为准。图片、VR等房屋信息由房源发布机构发布,如有侵权等情况,请在房源展示图片右下侧点击“反馈”联系幸福里找房平台处理。幸福里找房平台禁止经纪人/咨询师“返佣返现”,请您警惕。
反馈