选好房,就上幸福里找房
立即打开
1/16
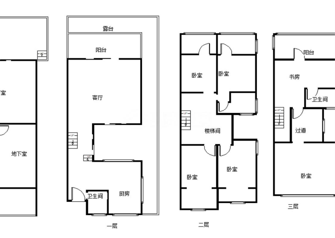
4室3厅 华侨城纯水岸208区
反馈
满两年
别墅
临近地铁
临近学校
1230万
售价
4室3厅
房型
357.01平
建筑面积
单价
34452元/平
挂牌
2023-11-02
楼层
低楼层/共3层
朝向
南
装修
毛坯
电梯
无电梯
楼型
板楼
类型
别墅
权属
商品房
小区
华侨城纯水岸208区(金牛-华侨城)
提示
购房租房请优先选择通过核验的房源
德祐锦巷兰台店官方提供
关注房源动态,掌握一手信息
关注动态
周边配套
详情
位置
华丰路260号
交通
教育
医疗
生活
休闲
花照壁北(27号线)
977m
青杠(沙西线富兴苑西华大道东侧)
1.0km
金府(6号线)
1.2km
华侨城纯水岸208区
详情
小区行情周报
详情
持平
咨询小区历史成交价
去咨询
免责声明:房源所示图片及其他信息仅供参考,购房时请以房本信息为准。图片、VR等房屋信息由房源发布机构发布,如有侵权等情况,请在房源展示图片右下侧点击“反馈”联系幸福里找房平台处理。幸福里找房平台禁止经纪人/咨询师“返佣返现”,请您警惕。
反馈