选好房,就上幸福里找房
立即打开
VR
图片
1/23
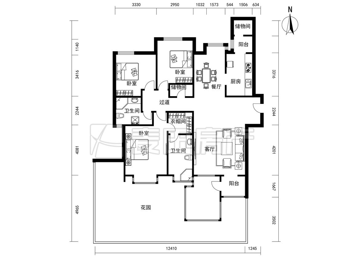
3室2厅 融科橄榄城(二期)
反馈
南北通透
有电梯
满两年
临近地铁
1599万
售价
3室2厅
房型
173平
建筑面积
单价
92427元/平
挂牌
2026-04-12
楼层
低楼层/共32层
朝向
南北
装修
精装修
电梯
有电梯
楼型
板楼
类型
住宅
权属
商品房
年代
2007年
小区
融科橄榄城(二期)(朝阳-望京)
点评
所在小区4位业主分享真实入住感受
提示
签订正式租房/购房合同前切勿支付任何费用
麦田房产店官方提供
关注房源动态,掌握一手信息
关注动态
周边配套
详情
位置
望京阜通东大街
交通
教育
医疗
生活
休闲
望京东(15号线)
680m
阜通(14号线)
1.4km
望京南(广顺南大街东煌大厦东南侧约100米)
1.4km
融科橄榄城(二期)
详情
小区行情周报
详情
持平
咨询小区历史成交价
去咨询
小区实勘测评
详情
8.4
综合评分“良好”
区域价值
8.9
产品价值
8.2
配套价值
8.0
交易价值
8.4
1、建筑品质方面:小区内楼栋规划好,楼栋的维护也很不错,整体的建筑品质较好。 2、居住品质方面:小区居民不用担心采光问题,内部人车分流,有地下停车场。整体居住体验较好。 3、交通方面:小区距离望京东地铁站仅1.2公里,临近地铁15号线,交通便利。 4、周边配套方面:小区1公里内有各类休闲购物场所、大小型医院等,能满足居民基本生活需求。
免责声明:房源所示图片及其他信息仅供参考,购房时请以房本信息为准。图片、VR等房屋信息由房源发布机构发布,如有侵权等情况,请在房源展示图片右下侧点击“反馈”联系幸福里找房平台处理。幸福里找房平台禁止经纪人/咨询师“返佣返现”,请您警惕。
反馈