选好房,就上幸福里找房
立即打开
1/7
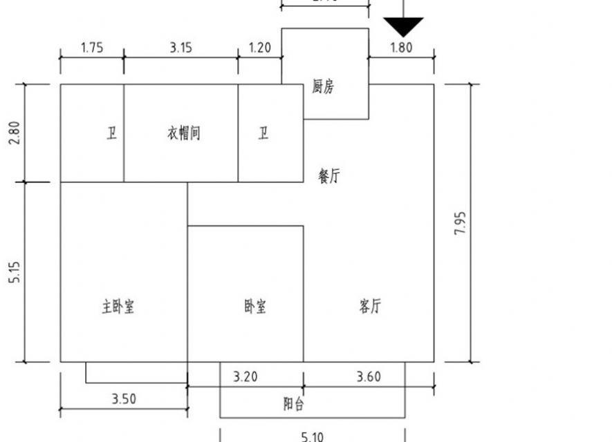
3室2厅 华宇尚文苑
反馈
抢手房源
59.8万
售价
3室2厅
房型
119平
建筑面积
单价
5025元/平
挂牌
2025-02-28
楼层
低楼层/共24层
朝向
其他
装修
其他
电梯
无电梯
类型
住宅
小区
华宇尚文苑(沛县-沛县)
提示
签订正式租房/购房合同前切勿支付任何费用
安之选房产官方提供
关注房源动态,掌握一手信息
关注动态
周边配套
详情
位置
青年路与朝阳路交叉口南140米
交通
教育
医疗
生活
休闲
子隆小区南门(沛县16路北线;沛县16路城区内环线东线;沛县21路1线;沛县21路2线;沛县8路)
426m
风光地带南门(沛县101路;沛县102路;沛县102路环城线;沛县16路北线;沛县16路城区内环线东线)
434m
子隆小区西门(28路;沛县32路)
586m
华宇尚文苑
详情
小区行情周报
详情
持平
咨询小区历史成交价
去咨询
免责声明:房源所示图片及其他信息仅供参考,购房时请以房本信息为准。图片、VR等房屋信息由房源发布机构发布,如有侵权等情况,请在房源展示图片右下侧点击“反馈”联系幸福里找房平台处理。幸福里找房平台禁止经纪人/咨询师“返佣返现”,请您警惕。
反馈