选好房,就上幸福里找房
立即打开
VR
图片
1/15

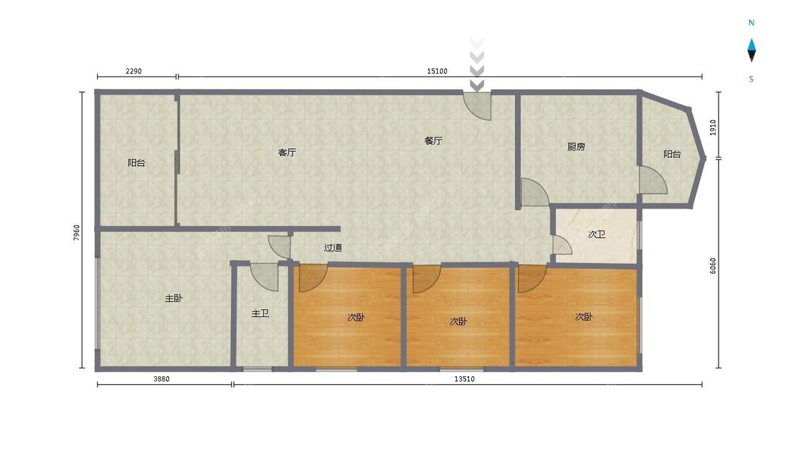
3室2厅 凯发花园

新上房源
有电梯
临近学校
158万
售价
3室2厅
房型
132平
建筑面积
正顺地产官方提供

周边配套

详情
位置
建业一路6号
交通
教育
医疗
生活
休闲
建业一路(建业一路26号)
117m
伙工殿大厦(21路;22路;25路;2路;2路21:30后;K3路)
294m
自然资源局(吉大街道)
419m

小区行情周报

详情
持平
咨询小区历史成交价
去咨询
免责声明:房源所示图片及其他信息仅供参考,购房时请以房本信息为准。图片、VR等房屋信息由房源发布机构发布,如有侵权等情况,请在房源展示图片右下侧点击“反馈”联系幸福里找房平台处理。幸福里找房平台禁止经纪人/咨询师“返佣返现”,请您警惕。反馈