选好房,就上幸福里找房
立即打开
1/11

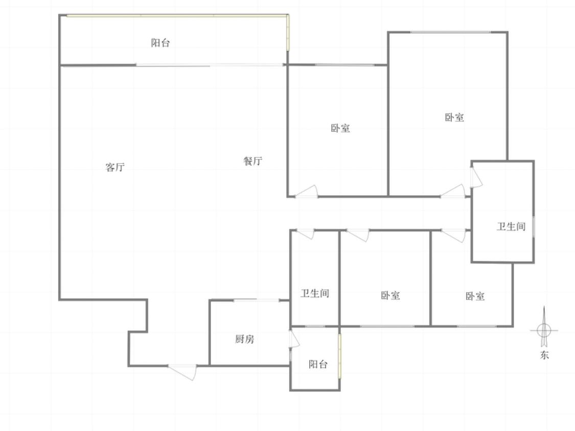
4室2厅 香港置地云山岳

有电梯
楼龄新
临近地铁
220万
售价
4室2厅
房型
147.19平
建筑面积
到家了官方提供

周边配套

详情
位置
悦清大道上湾
交通
教育
医疗
生活
休闲
王家庄(10号线;国博线)
771m
悦来(10号线;6号线支线/国博线)
1.3km
椿萱大道(5号线)
2.3km

小区行情周报

详情
持平
咨询小区历史成交价
去咨询
免责声明:房源所示图片及其他信息仅供参考,购房时请以房本信息为准。图片、VR等房屋信息由房源发布机构发布,如有侵权等情况,请在房源展示图片右下侧点击“反馈”联系幸福里找房平台处理。幸福里找房平台禁止经纪人/咨询师“返佣返现”,请您警惕。反馈