选好房,就上幸福里找房
立即打开
1/16
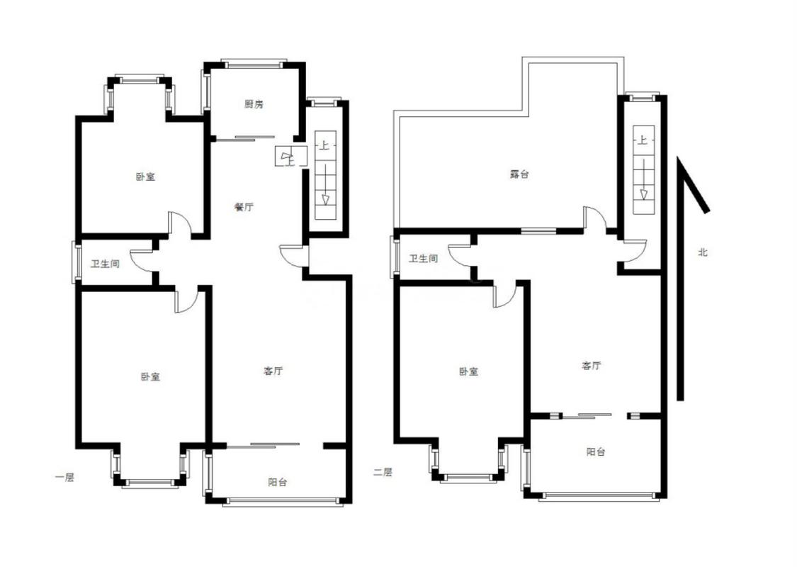
4室2厅 汉府雅园
反馈
临近地铁
140万
售价
4室2厅
房型
179.73平
建筑面积
单价
7789元/平
挂牌
2026-01-31
楼层
高楼层/共4层
朝向
南
装修
其他
电梯
无电梯
楼型
板楼
类型
住宅
权属
商品房
年代
2008年
小区
汉府雅园(铜山-铜山万达广场)
提示
签订正式租房/购房合同前切勿支付任何费用
鸿博房产官方提供
关注房源动态,掌握一手信息
关注动态
周边配套
详情
位置
北京北路69号
交通
教育
医疗
生活
休闲
师范大学(3号线)
352m
翟山(园博园定制专线7路)
799m
玉泉河(在建6号线一期;3号线)
1.1km
汉府雅园
详情
小区行情周报
详情
持平
咨询小区历史成交价
去咨询
免责声明:房源所示图片及其他信息仅供参考,购房时请以房本信息为准。图片、VR等房屋信息由房源发布机构发布,如有侵权等情况,请在房源展示图片右下侧点击“反馈”联系幸福里找房平台处理。幸福里找房平台禁止经纪人/咨询师“返佣返现”,请您警惕。
反馈