选好房,就上幸福里找房
立即打开
1/11
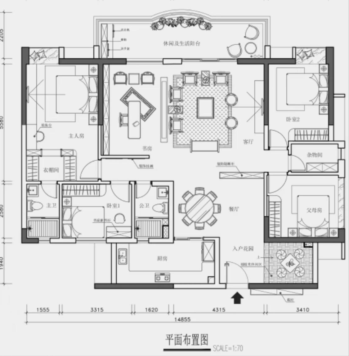
5室2厅 源江豪庭
反馈
有电梯
临近学校
99万
售价
5室2厅
房型
188平
建筑面积
单价
5265元/平
挂牌
2026-01-14
楼层
高楼层/共27层
朝向
东南
装修
毛坯
电梯
有电梯
类型
住宅
权属
商品房
年代
2015年
小区
源江豪庭(东源-东源)
提示
签订正式租房/购房合同前切勿支付任何费用
乐美家房产官方提供
关注房源动态,掌握一手信息
关注动态
周边配套
详情
位置
越王大道
交通
教育
医疗
生活
休闲
东源行政服务中心(306路)
1.1km
东源路口加油站(医疗便民专线)
1.3km
东源县人民医院(停运115路)
1.3km
源江豪庭
详情
小区行情周报
详情
持平
咨询小区历史成交价
去咨询
免责声明:房源所示图片及其他信息仅供参考,购房时请以房本信息为准。图片、VR等房屋信息由房源发布机构发布,如有侵权等情况,请在房源展示图片右下侧点击“反馈”联系幸福里找房平台处理。幸福里找房平台禁止经纪人/咨询师“返佣返现”,请您警惕。
反馈