选好房,就上幸福里找房
立即打开
1/10
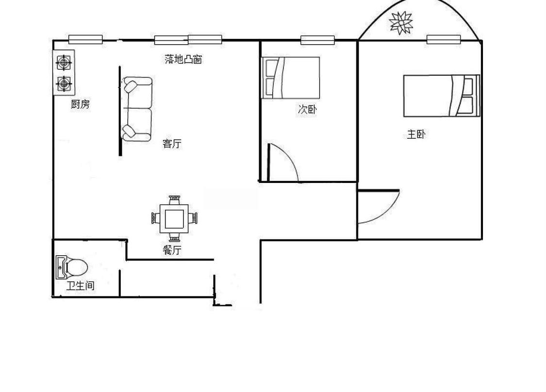
2室1厅 东方金典小区
反馈
有电梯
满两年
178万
售价
2室1厅
房型
102.13平
建筑面积
单价
17428元/平
挂牌
2026-01-02
楼层
高楼层/共23层
朝向
东南
装修
精装修
电梯
有电梯
楼型
板楼
类型
住宅
权属
商品房
小区
东方金典小区(丰泽-丰泽街道)
提示
签订正式租房/购房合同前切勿支付任何费用
贝客邦官方提供
关注房源动态,掌握一手信息
关注动态
周边配套
详情
位置
刺桐路763号
交通
教育
医疗
生活
休闲
圣湖小区(圣湖路19号)
406m
北淮路(X2路)
409m
青少年宫(田安北路丰泽广场旁)
467m
东方金典小区
详情
免责声明:房源所示图片及其他信息仅供参考,购房时请以房本信息为准。图片、VR等房屋信息由房源发布机构发布,如有侵权等情况,请在房源展示图片右下侧点击“反馈”联系幸福里找房平台处理。幸福里找房平台禁止经纪人/咨询师“返佣返现”,请您警惕。
反馈