选好房,就上幸福里找房
立即打开
1/11
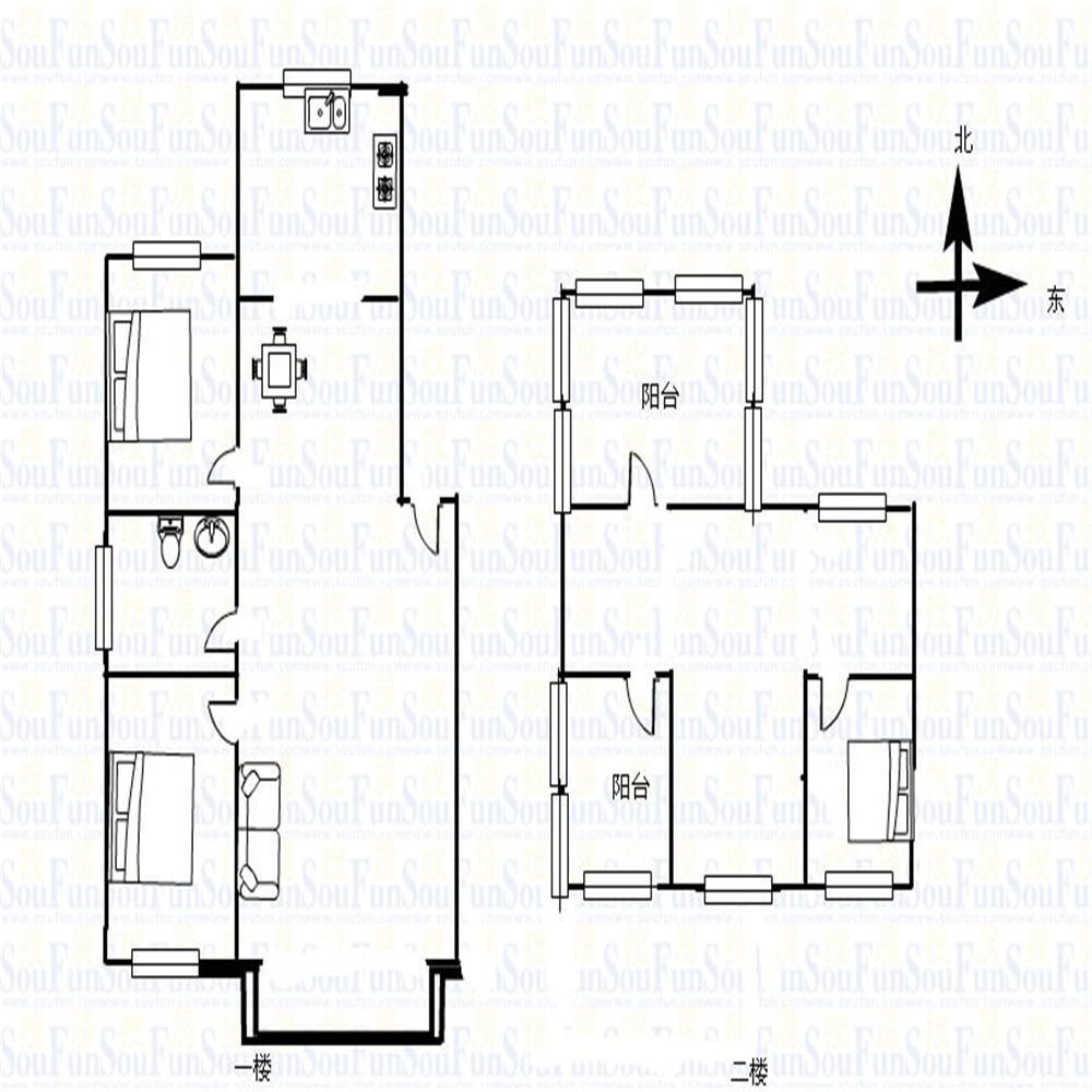
3室2厅 东方百合园
反馈
南北通透
满两年
绿化率高
108万
售价
3室2厅
房型
95平
建筑面积
单价
11368元/平
挂牌
2022-02-21
楼层
高楼层/共6层
朝向
南北
装修
精装修
电梯
无电梯
类型
住宅
权属
商品房
小区
东方百合园(邗江-沃尔玛)
提示
签订正式租房/购房合同前切勿支付任何费用
远大不动产官方提供
关注房源动态,掌握一手信息
关注动态
周边配套
详情
位置
扬子江北路308号
交通
教育
医疗
生活
休闲
双桥(1路;1路晚班车;20路;20路晚班车)
944m
迎宾馆(停运旅游观光巴士;17路;29路;29路晚班车;37路;59路晚班车;62路;6路;70路;99路;99路晚班车;游1路;游2路;游3路)
1.7km
石塔寺(停运88路区间;107路;17路;18路;18路晚班;1路;1路晚班车;26路;26路晚班车;27路;30路;40路;51路晚班车;55路晚班车;59路晚班车;5路;66路;6)
1.9km
东方百合园
详情
小区行情周报
详情
持平
咨询小区历史成交价
去咨询
免责声明:房源所示图片及其他信息仅供参考,购房时请以房本信息为准。图片、VR等房屋信息由房源发布机构发布,如有侵权等情况,请在房源展示图片右下侧点击“反馈”联系幸福里找房平台处理。幸福里找房平台禁止经纪人/咨询师“返佣返现”,请您警惕。
反馈