选好房,就上幸福里找房
立即打开
1/16
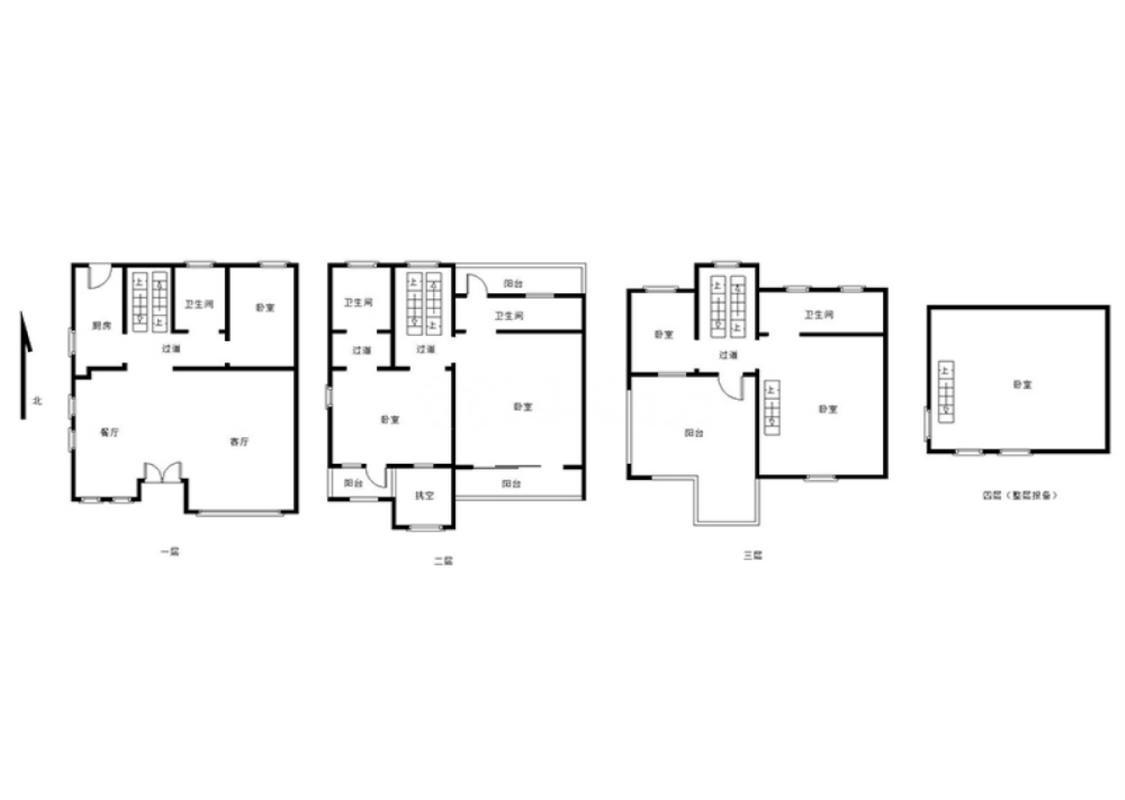
5室3厅 碧桂园生态城(叠翠台)
反馈
满五年
423万
售价
5室3厅
房型
271.11平
建筑面积
单价
15602元/平
挂牌
2025-12-31
楼层
低楼层/共3层
朝向
南
装修
毛坯
电梯
无电梯
楼型
板楼
类型
住宅
权属
商品房
小区
碧桂园生态城(叠翠台)(东湖高新-光谷东)
提示
签订正式租房/购房合同前切勿支付任何费用
武汉贝乐佳房地产官方提供
关注房源动态,掌握一手信息
关注动态
周边配套
详情
位置
花山大道
交通
教育
医疗
生活
休闲
花山河(希琥路碧桂园生态城左岸西南侧约90米)
777m
花山新城(19号线)
1.0km
碧桂园生态城(叠翠台)
详情
小区行情周报
详情
持平
咨询小区历史成交价
去咨询
免责声明:房源所示图片及其他信息仅供参考,购房时请以房本信息为准。图片、VR等房屋信息由房源发布机构发布,如有侵权等情况,请在房源展示图片右下侧点击“反馈”联系幸福里找房平台处理。幸福里找房平台禁止经纪人/咨询师“返佣返现”,请您警惕。
反馈