省心挑好房,先上幸福里
立即打开
1/9
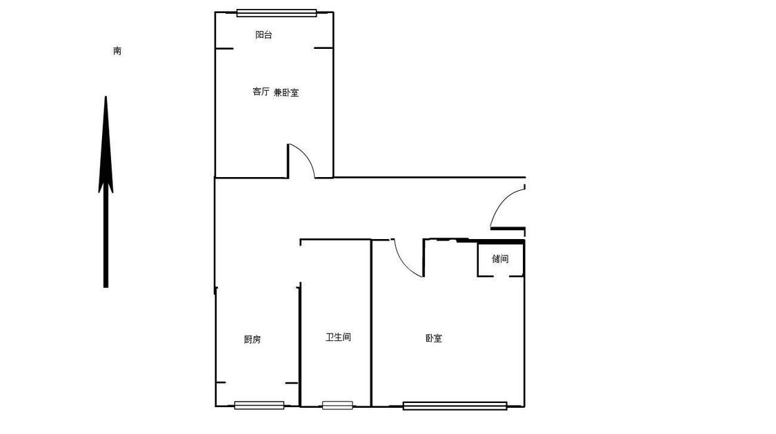
2室1厅 建设一里
反馈
新上房源
刚需优选
南北通透
临近学校
150万
售价
2室1厅
房型
65.55平
建筑面积
单价
22883元/平
挂牌
2025-12-11
楼层
高楼层/共6层
朝向
南北
装修
简装修
电梯
无电梯
类型
住宅
权属
商品房
年代
1986年
小区
建设一里(丰台-卢沟桥)
点评
所在小区1位业主分享真实入住感受
提示
签订正式租房/购房合同前切勿支付任何费用
富川伟业官方提供
关注房源动态,掌握一手信息
关注动态
周边配套
详情
位置
安康西路与二七厂路交叉口西500米
交通
教育
医疗
生活
休闲
后吕村(在建1号线支线)
1.8km
张郭庄(在建1号线支线;14号线)
2.9km
花园北里(专33路)
1.3km
建设一里
详情
小区行情周报
详情
持平
咨询小区历史成交价
去咨询
小区实勘测评
详情
7.5
综合评分“良好”
区域价值
7.5
产品价值
7.5
配套价值
8.0
交易价值
7.0
1、小区内部各类自助设备比较齐全,让广大业主们在老小区中也能享受到现代化设施所带来的日常便利。 2、小区绿化较好,楼栋间距大,采光较好,且周围种有树木,算是一个比较宜居的居民社区。 3、小区均为小户型,单价低,购房成本低。 4、小区地理位置较好,周边餐饮、娱乐等各类资源配套比较齐全,进一步满足业主们的日常需求。
免责声明:房源所示图片及其他信息仅供参考,购房时请以房本信息为准。图片、VR等房屋信息由房源发布机构发布,如有侵权等情况,请在房源展示图片右下侧点击“反馈”联系幸福里平台处理。幸福里平台禁止经纪人/咨询师“返佣返现”,请您警惕。
反馈